Ce lot n’est plus disponible chez VIANOVA ou est vendu.

Vous pouvez revenir dans 24h pour vérifier le stock à jour ou contacter un conseiller Vianova pour vérifier le stock en direct.
Vous pouvez également continuer votre recherche sur notre site « ici ».

Prix
631 000€
Type
Appt. au 2ème
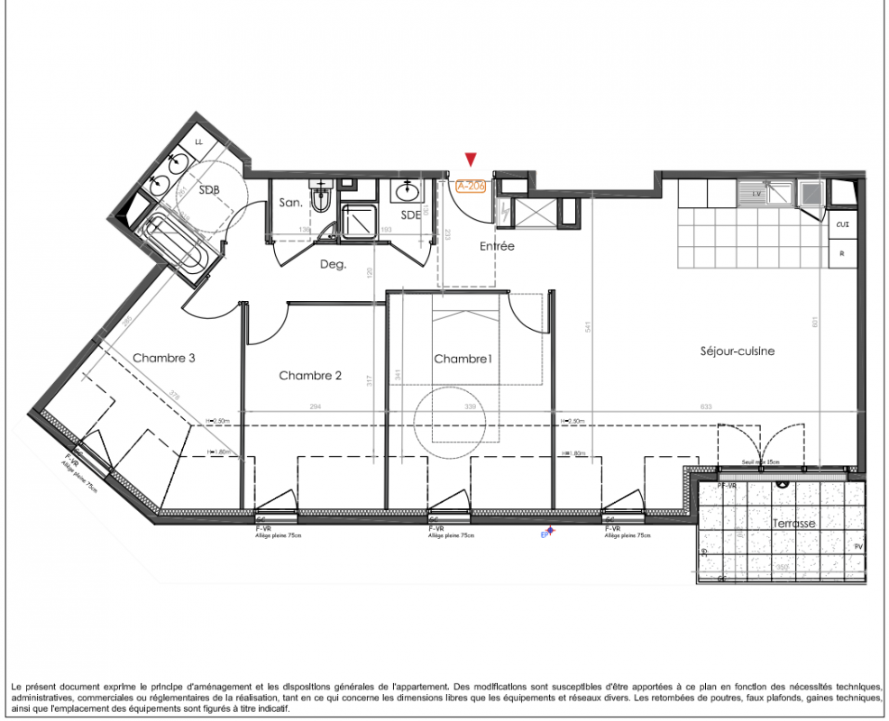
Pièces
T4
Surface
89.3 m²
Exposition
-
Ville
Marly-le-Roi (78160)
Livraison
2ème trimestre 2027
Informations
01 81 80 39 10

Présentation du programme "CASALIA"

La Résidence
La résidence "CASALIA", se trouve au cœur d'un quartier résidentiel, qui offre une vue imprenable sur les environs. 
Du studio au 4 pièces, ces lieux de vie sont pensés pour votre bien-être tout en respectant les dernières normes énergétiques. Notre résidence est un choix judicieux pour les familles, les jeunes professionnels et les amateurs de vie paisible.

A proximité

Proche de la Gare de Marly-le-Roi : lignes du Transilien Paris-Saint-lazare
Proche du bus : lignes : 1, 9A, 9AB, 9B, 9D, 10, 15, 15S, 18S et 21.

Autres logements T4 du programme "CASALIA"

Disponibilité Prix Genre Pièces Surface Étage
Voir
Archivé
595 000€ Appt. T4 83.3m2 1er
Voir
Archivé
575 000€ Appt. T4 86.7m2 2ème
Voir
Archivé
605 000€ Appt. T4 86.25m2 2ème
DO NOT CLICK