Prix
507 000€
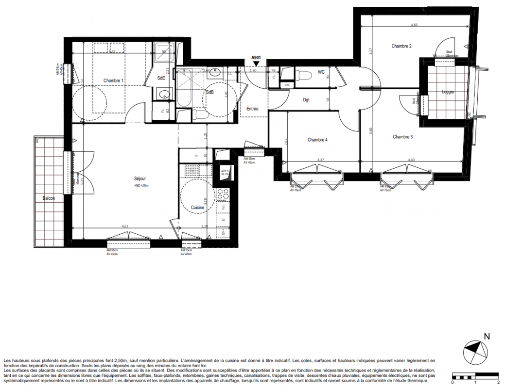
Type
Appt. au 9ème
Pièces
T5
Surface
101.22 m²
Exposition
-
Ville
Vitry-sur-Seine (94400)
Livraison
1er trimestre 2026
Informations
01 81 80 39 10

Présentation du programme "LA PLACE | ARDOINES"

[ OFFRE EXCLUSIVE ] – Profitez des frais de notaire offerts pour le dernier appartement 5 pièces* et emménagez immédiatement.

À VITRY-SUR-SEINE, devenez propriétaire de votre résidence principale à un prix inférieur au marché grâce au dispositif ANRU, permettant de bénéficier d’une TVA réduite à 5,5 %**
Selon votre situation, ce projet peut également être éligible au Prêt à Taux Zéro (PTZ).

La résidence LA PLACE | ARDOINES propose une dernière opportunité, avec espaces extérieurs et stationnements en sous-sol.

Tout juste livrée, la résidence s’inscrit dans un environnement urbain complet, offrant l’ensemble des commodités du quotidien et une accessibilité optimale. Elle bénéficie d’une proximité immédiate avec la future gare des Ardoines et se situe au pied d’un espace public paysager agréablement aménagé.

Vivre au sein de LA PLACE | ARDOINES, c’est profiter d’un habitat reconnu pour sa qualité environnementale et son confort, grâce au label NF Habitat HQE.



*Voir les conditions sur la page Mentions légales de notre site Vianova.fr
**Prix indiqués en TVA réduite à 5,5 %, dans le cadre d’une acquisition en résidence principale, sous conditions d’éligibilité à l’ANRU.

Contactez nos conseillers Lamotte à Paris ou rendez-vous sur Vianova.fr pour en savoir plus.
© C. Lallement

Autres logements T5 du programme "LA PLACE | ARDOINES"

Pas de logements disponibles
DO NOT CLICK