257 000€ (TVA 20%)
235 583€ (TVA 10%)
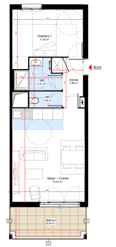
Appt. au 2ème
T2
46.07 m²
-
Orly (94310)
2ème trimestre 2028
01 81 80 39 10
Présentation du programme "Mésange"
Nouvelle résidence Mésange à Orly signée Sogeprom - Quartier Parcs en Scène
Dans la poursuite du succès commercial des résidences Barbara et Equilibre à Orly, découvrez la nouvelle résidence MESANGE, située dans le même quartier dynamique Parcs en Scène, alliant confort, durabilité et cadre de vie privilégié.
Cette nouvelle opération propose des appartements du studio au 5 pièces, pour un quotidien facilité. Chaque logement a été pensé pour répondre aux attentes de tous les styles de vie, que vous soyez investisseur ou à la recherche de votre résidence principale.
Au coeur de la résidence, profitez d'un jardin paysager convivial, véritable lieu de vie et de détente, accessible à tous les résidents.
Les + du programme :
- cadre de vie agréable
- proximité du métro 14 et du RER C
- Conforme à la RE2020 seuil 2025 : performances énergétiques avancées pour un confort optimal et des économies d'énergie.
- Labellisé BiodiverCity® : un projet respectueux de la biodiversité et de l'environnement.
Une localisation idéale dans un quartier en plein renouveau, à proximité des transports, écoles et commodités.
Offrez-vous un cadre de vie durable et agréable aux portes de Paris !
Autres logements T2 du programme "Mésange"
| Disponibilité | Prix | No | Genre | Pièces | Surface | Étage | Disponibilité | Prix | ||
|---|---|---|---|---|---|---|---|---|---|---|
| Voir | Disponible | 254 000€ | B24 | Appt. | T2 | 45.76m2 | 2ème | Disponible | 254 000€ | Voir |
| Voir | Disponible | 260 000€ | B54 | Appt. | T2 | 45.76m2 | 5ème | Disponible | 260 000€ | Voir |
| Voir | Disponible | 258 000€ | B44 | Appt. | T2 | 45.76m2 | 4ème | Disponible | 258 000€ | Voir |
| Voir | Disponible | 256 000€ | B34 | Appt. | T2 | 45.76m2 | 3ème | Disponible | 256 000€ | Voir |
| Voir | Disponible | 261 000€ | B45 | Appt. | T2 | 46.07m2 | 4ème | Disponible | 261 000€ | Voir |
| Voir | Disponible | 256 000€ | C11 | Appt. | T2 | 46.12m2 | 1er | Disponible | 256 000€ | Voir |
| Voir | Disponible | 272 000€ | C23 | Appt. | T2 | 50.84m2 | 2ème | Disponible | 272 000€ | Voir |
| Voir | Disponible | 271 000€ | C12 | Appt. | T2 | 51.4m2 | 1er | Disponible | 271 000€ | Voir |