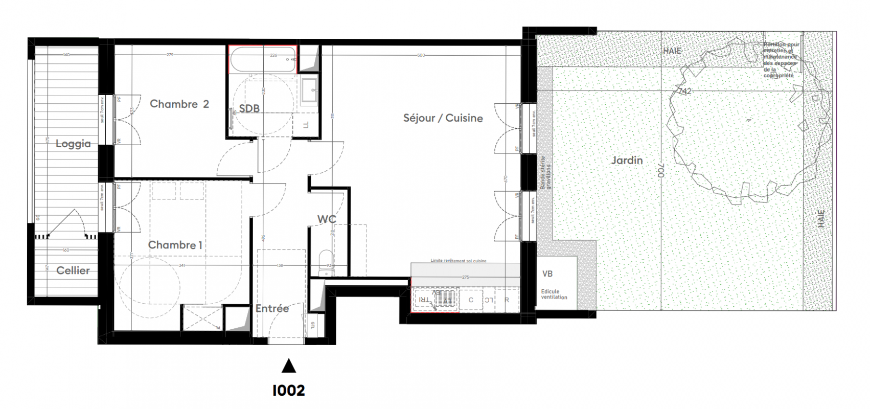
324 900€
Appt. au 0-RDC
T3
66.11 m²
-
Orly (94310)
2ème trimestre 2028
01 81 80 39 10
Présentation du programme "LES JARDINS DU PELVOUX"
FRAIS DE NOTAIRE OFFERTS + REMISE DE 3 000 EUROS PAR PIECE*
Située Chemin des Carrières, au coeur de la ZAC en plein développement, la résidence s'inscrit dans un environnement en devenir mêlant logements, commerces et espaces publics paysagers. À proximité du Vieil-Orly et des transports, l'adresse facilite le quotidien.
La résidence propose des appartements du studio au 5 pièces, adaptés aux besoins des célibataires, couples et familles.
Organisée autour d'un jardin central, la résidence privilégie une architecture à taille humaine avec des bâtiments de 2 à 4 étages. Les façades aux teintes sobres et naturelles s'intègrent harmonieusement dans leur environnement, dans un esprit résidentiel apaisé.
Les appartements offrent des espaces de vie lumineux, souvent traversants ou bi-orientés, avec de belles hauteurs sous plafond. Tous se prolongent par des espaces extérieurs : loggias, terrasses ou jardins privatifs pouvant atteindre de belles surfaces, pensés comme de véritables pièces de vie.
Les + du programme :
•Jardin paysager central avec plus de 1 400 m² de nature
•Espaces extérieurs pour chaque logement
•Stationnements en sous-sol et locaux vélos
•Résidence à taille humaine favorisant l'intimité
•Certification NF Habitat HQE et RE2020
Au quotidien, profitez d'un environnement pratique et connecté :
•Écoles, crèche et commerces à proximité
•Marché du Vieil-Orly accessible à pied
•Bus au pied de la résidence vers RER C et métro 14
•Accès rapide à Paris (environ 16 minutes via la ligne 14)
Un cadre de vie équilibré entre dynamisme urbain et nature, idéal pour habiter ou investir dans un secteur en pleine évolution.
Contactez-nous dès maintenant au 01 87 52 25 22 pour en savoir plus et découvrir les logements disponibles.
Autres logements T3 du programme "LES JARDINS DU PELVOUX"
| Disponibilité | Prix | No | Genre | Pièces | Surface | Étage | Disponibilité | Prix | ||
|---|---|---|---|---|---|---|---|---|---|---|
| Voir | Disponible | 308 900€ | D102 | Appt. | T3 | 61.35m2 | 0-RDC | Disponible | 308 900€ | Voir |
| Voir | Disponible | 312 900€ | D202 | Appt. | T3 | 61.36m2 | 2ème | Disponible | 312 900€ | Voir |
| Voir | Disponible | 316 900€ | B102 | Appt. | T3 | 62.16m2 | 1er | Disponible | 316 900€ | Voir |
| Voir | Disponible | 299 900€ | C101 | Appt. | T3 | 62.77m2 | 1er | Disponible | 299 900€ | Voir |
| Voir | Disponible | 347 900€ | B202 | Appt. | T3 | 62.87m2 | 2ème | Disponible | 347 900€ | Voir |
| Voir | Disponible | 314 900€ | H202 | Appt. | T3 | 65.96m2 | 2ème | Disponible | 314 900€ | Voir |
| Voir | Disponible | 314 900€ | H102 | Appt. | T3 | 65.96m2 | 1er | Disponible | 314 900€ | Voir |
| Voir | Disponible | 324 900€ | F002 | Appt. | T3 | 66.9m2 | 0-RDC | Disponible | 324 900€ | Voir |
| Voir | Disponible | 309 900€ | A102 | Appt. | T3 | 67.19m2 | 1er | Disponible | 309 900€ | Voir |
| Voir | Disponible | 319 900€ | F102 | Appt. | T3 | 67.32m2 | 1er | Disponible | 319 900€ | Voir |
| Voir | Disponible | 329 900€ | I102 | Appt. | T3 | 67.34m2 | 1er | Disponible | 329 900€ | Voir |
| Voir | Disponible | 333 900€ | I202 | Appt. | T3 | 67.35m2 | 2ème | Disponible | 333 900€ | Voir |
| Voir | Disponible | 355 900€ | B303 DUPLEX | Appt. | T3 | 69.59m2 | 3ème | Disponible | 355 900€ | Voir |
| Voir | Disponible | 335 900€ | H001 | Appt. | T3 | 69.74m2 | 0-RDC | Disponible | 335 900€ | Voir |
| Voir | Disponible | 326 900€ | B001 | Appt. | T3 | 69.98m2 Le bon plan | 0-RDC | Disponible | 326 900€ | Voir |
| Voir | Disponible | 329 900€ | H201 | Appt. | T3 | 70.57m2 | 2ème | Disponible | 329 900€ | Voir |
| Voir | Disponible | 329 900€ | H101 | Appt. | T3 | 70.76m2 | 1er | Disponible | 329 900€ | Voir |
| Voir | Disponible | 345 900€ | E202 DUPLEX | Appt. | T3 | 71.25m2 | 0-RDC | Disponible | 345 900€ | Voir |
| Voir | Disponible | 346 900€ | E201 DUPLEX | Appt. | T3 | 71.76m2 | 2ème | Disponible | 346 900€ | Voir |
| Voir | Disponible | 347 900€ | D002 | Appt. | T3 | 73.69m2 | 0-RDC | Disponible | 347 900€ | Voir |
| Voir | Disponible | 349 900€ | D101 | Appt. | T3 | 74.79m2 | 1er | Disponible | 349 900€ | Voir |
| Voir | Disponible | 353 900€ | D201 | Appt. | T3 | 74.79m2 | 2ème | Disponible | 353 900€ | Voir |
| Voir | Disponible | 362 900€ | D301 DUPLEX | Appt. | T3 | 75.03m2 | 3ème | Disponible | 362 900€ | Voir |
| Voir | Disponible | 340 900€ | B302 DUPLEX | Appt. | T3 | 77.35m2 | 3ème | Disponible | 340 900€ | Voir |