Prix
283 636€
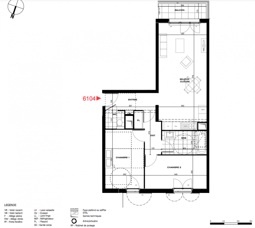
Type
Appt. au 1er
Pièces
T3
Surface
66 m²
Exposition
Sud-Ouest
Ville
La Queue-en-Brie (94510)
Livraison
1er trimestre 2026
Informations
01 81 80 39 10

Présentation du programme "TILIA"

A 18 kilomètres seulement se trouve le Centre de Paris et pourtant La Queue-en-Brie, cité médiévale renommée, profite d'un environnement naturel de toute beauté. Elle propose de nombreux commerces, un vieux centre historique, des structures scolaires, des centres commerciaux modernes, une école de musique et de danse...À l'angle de la rue du 8 mai 1945 et de la rue Dunoyer de Segonzac, cette nouvelle adresse vous propose de découvrir un quotidien de qualité au coeur d'un environnement naturel verdoyant. Entourée d'arbres à haute tige et tournée vers de beaux espaces paysagers, la résidence TILIA' propose des appartements lumineux, du studio au 5 pièces, prolongés pour la plupart par de superbes, loggias, de belles terrasses et des balcons profonds. De plus, 6 commerces seront créés et participeront à la vie de quartier. Des places de stationnement et des prestations de qualité complètent avantageusement l'offre de cette résidence de belle facture entièrement sécurisée. Pour être les premiers informés, contactez-nous dès maintenant!

Autres logements T3 du programme "TILIA"

Disponibilité Prix Genre Pièces Surface Étage
Voir
Disponible
277 000€ Appt. T3 61m2 2ème
Voir
Disponible
279 000€ Appt. T3 64m2 1er
DO NOT CLICK