Prix
336 000€  (TVA 20%)
308 000€  (TVA 10%)
Type
Appt. au 1er
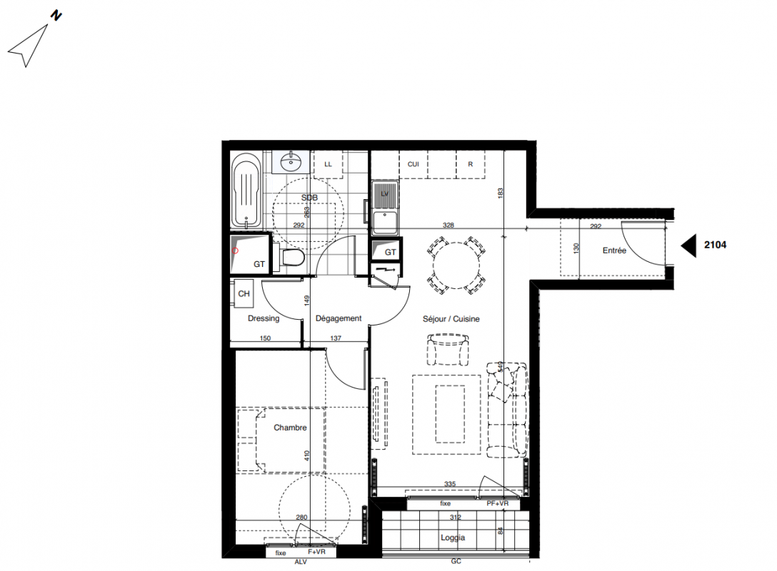
Pièces
T2
Surface
50 m²
Exposition
Sud-Est
Ville
Alfortville (94140)
Livraison
3ème trimestre 2025
Informations
01 81 80 39 10

Présentation du programme "HORIZON SEINE"

Découvrez aux portes de Paris, votre nouvelle résidence située à proximité des commerces, des services et des établissements scolaires de la maternelle au lycée. A quelques pas, les amoureux de la nature pourront profiter des bords de Seine ou des bords de Marne. Pour simplifier vos déplacements, la ligne 8 du métro station « Ecole Vétérinaire » est à 12 minutes à pied** et vous permettra de rejoindre Paris Bastille en 15 minutes**. En voiture, vous rejoindrez Paris par la Porte d'Ivry en seulement 11min**. La résidence à l'architecture contemporaine vous propose des appartements du studio au 5 pièces duplex s'ouvrant pour la plupart sur des loggias, balcons ou de belles terrasses plein-ciel. Vous profiterez de belles orientations et pour certains d'une vue directe sur la Seine.

Autres logements T2 du programme "HORIZON SEINE"

Disponibilité Prix Genre Pièces Surface Étage
Voir
Disponible
337 999€ Appt. T2 51m2 2ème