Prix
361 706€
361 706€
Type
Appt. au 1er
Appt. au 1er
Pièces
T3
T3
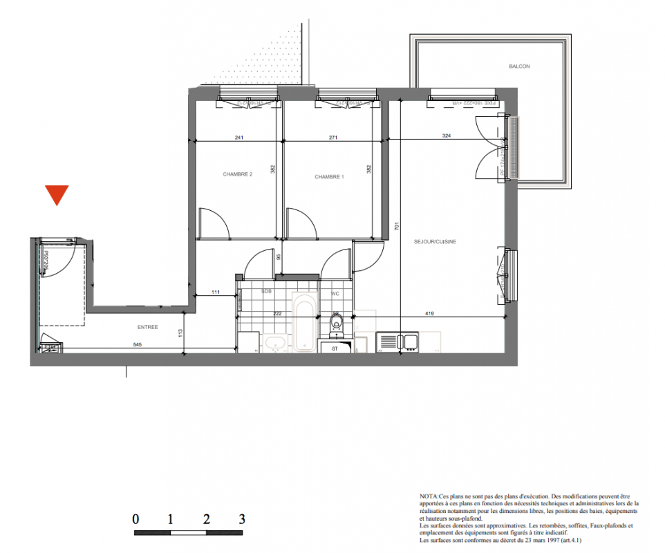
Surface
65.33 m²
65.33 m²
Exposition
-
-
Ville
Taverny (95150)
Taverny (95150)
Livraison
4ème trimestre 2026
4ème trimestre 2026
Informations
01 81 80 39 10
01 81 80 39 10
Présentation du programme "Harmony"
Découvrez Harmony, la nouvelle adresse située en coeur de ville de Taverny. Devenez propriétaire aux meilleures conditions pour habiter ou investir.
Situé au 227 rue de Paris et au 7 rue Ancelot, le projet sera composé de seulement 15 logements, du T2 au T4 duplex, une micro-crèche et une boutique en pied d'immeuble. Parfaitement intégrée dans son quartier, cette résidence à taille humaine est située à proximité des écoles, des commerces, à seulement 200m de la gare de Taverny.