Prix
161 000€
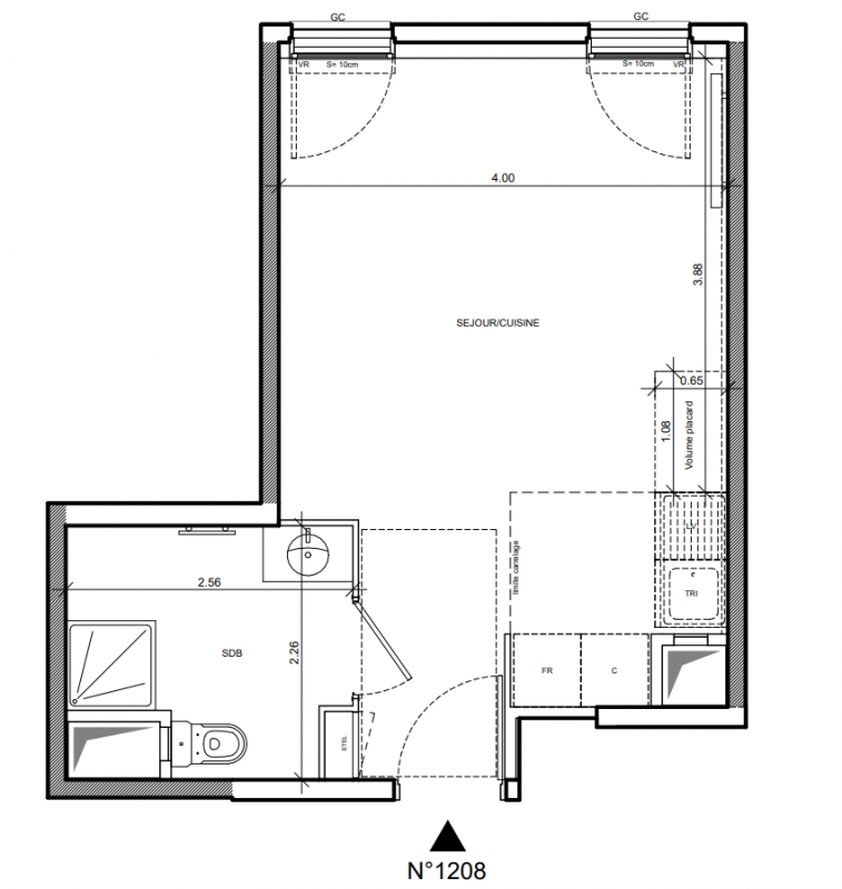
Type
Appt. au 2ème
Pièces
Studio
Surface
27.31 m²
Exposition
Nord
Ville
Pontoise (95300)
Livraison
4ème trimestre 2027
Informations
01 81 80 39 10

Présentation du programme "Allure"

Des cascades de terrasses, de la verdure tout autour et des commerces au pied de chez vous…Cette nouvelle adresse à Pontoise porte haut la qualité de vie, en proposant des appartements neufs chaleureux et presque tous agrandis par des balcons, terrasses ou jardins privatifs. Du studio au 3 pièces, laissez-vous séduire par le confort d’intérieurs contemporains, déclinant pour certains des plans évolutifs capables de se transformer selon vos besoins. Eligible à la TVA réduite, cette résidence neuve est également disponible avec la solution Vianova Access, permettant de devenir propriétaire sans apport, et avec des mensualités proches de celles d’un loyer.

Autres logements Studio du programme "Allure"

Disponibilité Prix Genre Pièces Surface Étage
Voir
Disponible
200 000€ Appt. Studio 26.52m2 6ème
Voir
Disponible
207 000€ Appt. Studio 31.54m2 6ème
DO NOT CLICK