Ce lot n’est plus disponible chez VIANOVA ou est vendu.

Vous pouvez revenir dans 24h pour vérifier le stock à jour ou contacter un conseiller Vianova pour vérifier le stock en direct.
Vous pouvez également continuer votre recherche sur notre site « ici ».

Prix
208 000€  (TVA 20%)
182 867€  (TVA 5.5%)
Type
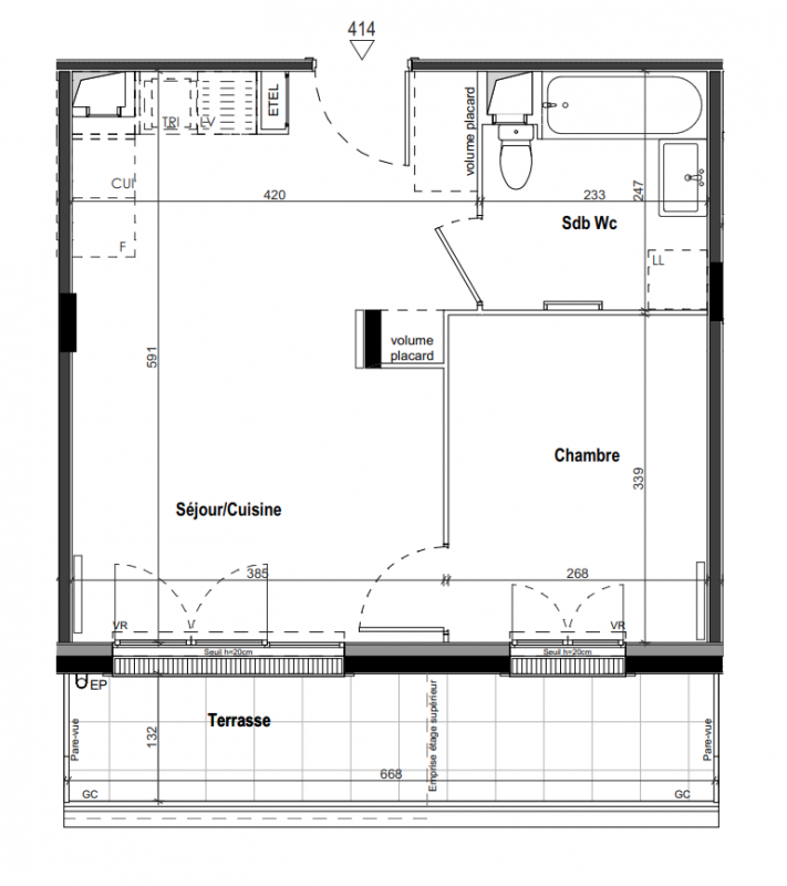
Appt. au 1er
Pièces
T2
Surface
37.4 m²
Exposition
Sud
Ville
Goussainville (95190)
Livraison
3ème trimestre 2027
Informations
01 81 80 39 10

Présentation du programme "Carré Coubertin"

Architecture néoclassique et vastes espaces verts sont au rendez-vous  au sein de cette résidence neuve, nichée au cœur du nouvel écoquartier de Goussainville, à seulement 300m de la gare RER. Découvrez de beaux appartements neufs du studio au 4 pièces, tous ouverts sur un balcon, une terrasse ou un jardin privatif.
Avec ses commerces, écoles et services à proximité, l’écoquartier offre la sérénité d’une vie piétonne tout en réintroduisant un brin de nature en milieu urbain. Jardins d’enfants, potagers, espaces de compostage et pistes cyclables transforment le quotidien, faisant de cette adresse un véritable cocon de bien-être.

Profitez de la TVA réduite à 5,5% pour devenir propriétaire à Goussainville, à seulement 30 min en RER de Paris.

Autres logements T2 du programme "Carré Coubertin"

Pas de logements disponibles
DO NOT CLICK