Prix
342 000€  (TVA 20%)
300 675€  (TVA 5.5%)
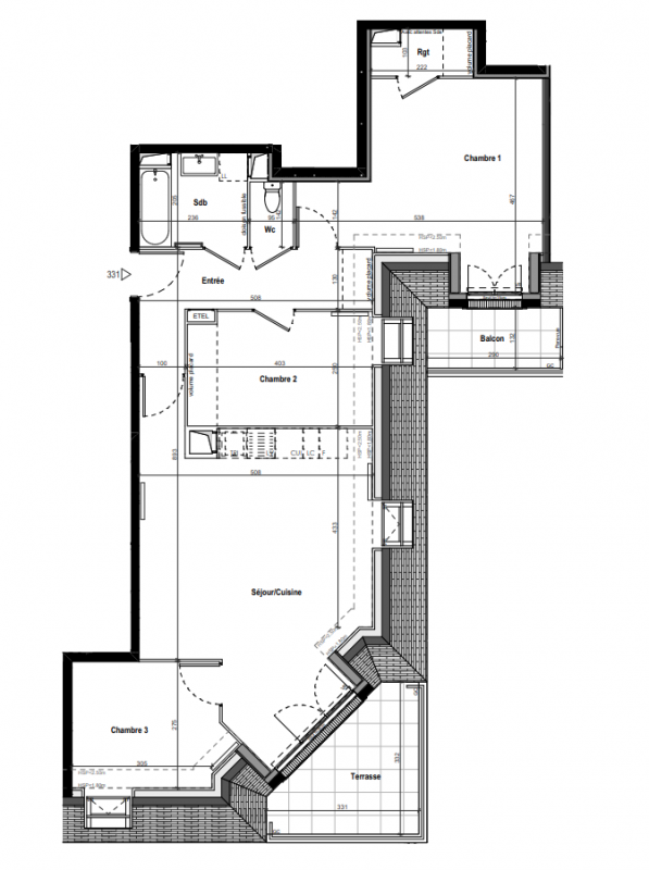
Type
Appt. au 3ème
Pièces
T4
Surface
82.62 m²
Le bon plan
Exposition
Sud
Ville
Goussainville (95190)
Livraison
3ème trimestre 2027
Informations
01 81 80 39 10

Présentation du programme "Carré Coubertin"

Architecture néoclassique et vastes espaces verts sont au rendez-vous  au sein de cette résidence neuve, nichée au cœur du nouvel écoquartier de Goussainville, à seulement 300m de la gare RER. Découvrez de beaux appartements neufs du studio au 4 pièces, tous ouverts sur un balcon, une terrasse ou un jardin privatif.
Avec ses commerces, écoles et services à proximité, l’écoquartier offre la sérénité d’une vie piétonne tout en réintroduisant un brin de nature en milieu urbain. Jardins d’enfants, potagers, espaces de compostage et pistes cyclables transforment le quotidien, faisant de cette adresse un véritable cocon de bien-être.

Profitez de la TVA réduite à 5,5% pour devenir propriétaire à Goussainville, à seulement 30 min en RER de Paris.

Autres logements T4 du programme "Carré Coubertin"

Disponibilité Prix Genre Pièces Surface Étage
Voir
Optionné
331 000€ Appt. T4 74.43m2 3ème
Voir
Disponible
338 000€ Appt. T4 78.85m2 4ème
DO NOT CLICK