Ce lot n’est plus disponible chez VIANOVA ou est vendu.

Vous pouvez revenir dans 24h pour vérifier le stock à jour ou contacter un conseiller Vianova pour vérifier le stock en direct.
Vous pouvez également continuer votre recherche sur notre site « ici ».

Prix
334 000€  (TVA 20%)
293 642€  (TVA 5.5%)
Type
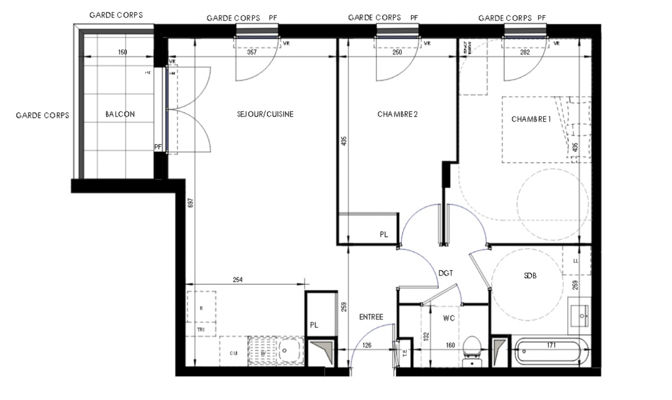
Appt. au 2ème
Pièces
T3
Surface
59.13 m²
Exposition
-
Ville
Ermont (95120)
Livraison
3ème trimestre 2027
Informations
01 81 80 39 10

Présentation du programme "Les Terrasses d'Adria"

À Ermont, une résidence sculpturale proche de toutAu cœur de la vallée de Montmorency, Ermont constitue une adresse privilégiée pour investir dans le Val-d’Oise. Prisée pour sa qualité de vie et sa proximité avec la forêt domaniale, cette ville dynamique bénéficie d’une connexion parfaite aux grands bassins d’emplois du Nord-Ouest parisien et à la capitale avec des accès directs à l’A115, l’A15, et 4 gares desservies par le RER C et les Transiliens J et H qui vous placent au centre de paris en moins de 30min*. Familiale et active, elle témoigne d’une belle vitalité avec un grand nombre de commerces et services de proximité, et une animation culturelle et sportive qui fait le bonheur de ses 30 000 habitants. Fort de tous ces atouts, Ermont est promis à une forte demande locative, vous réaliserez ainsi un placement en patrimonial locatif en toute sécurité. *Source : ratp.fr

Autres logements T3 du programme "Les Terrasses d'Adria"

Pas de logements disponibles