359 129€ (TVA 20%)
315 734€ (TVA 5.5%)
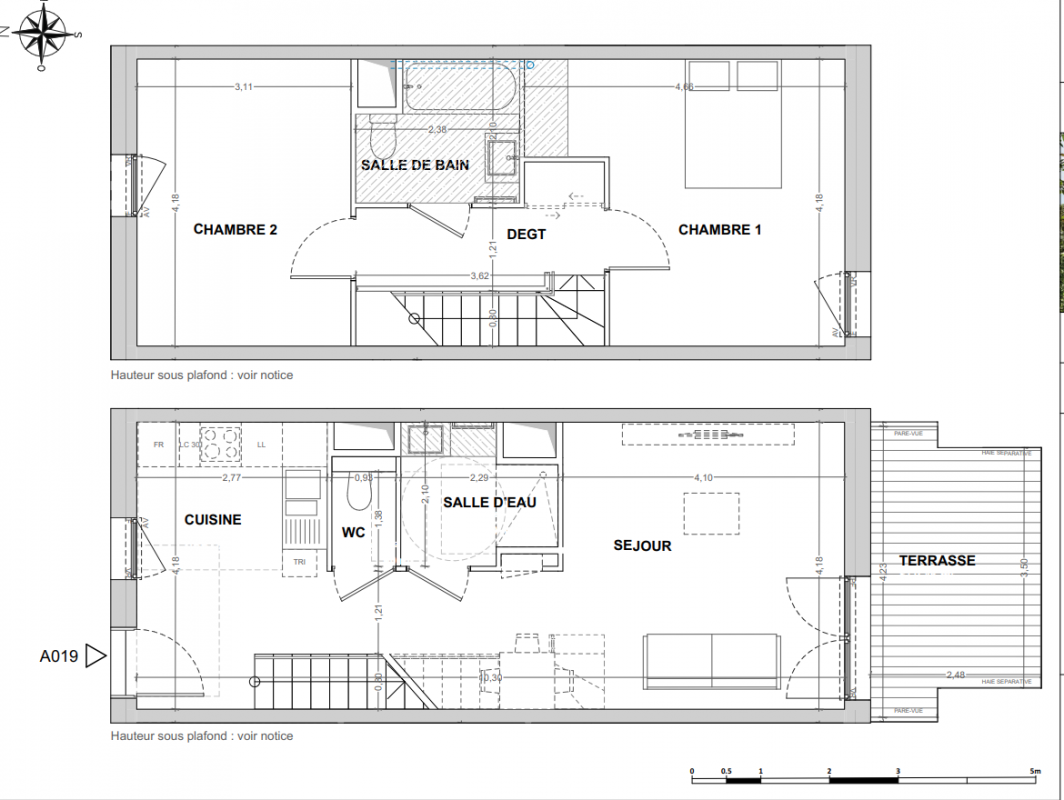
Appt. au 0-RDC
-
76.42 m²
-
Courdimanche (95800)
1er trimestre 2027
01 81 80 39 10
Présentation du programme "VIVAREA"
FRAIS DE NOTAIRE OFFERTS POUR VOTRE ACHAT ! * La résidence prend place dans le quartier des Doux-Épis de la Plaine des Linandes, au coeur de l'écoquartier "Le Domaine Grandes Terres". Située à 2 km du RER Cergy Saint-Christophe, votre future résidence neuve signée Crédit Agricole Immobilier et Spirit Immobilier profite de nombreux avantages : écoles (crèche, maternelle, collège), centre commercial, salle de cinéma, commerces, salle de spectacle... Vous disposez également d'un accès immédiat à l'Aren'Park, ses commerces et restaurants, ainsi qu'à de nombreux équipements sportifs et culturels : la patinoire Aren'Ice, le parc de loisirs indoor Koezio, le complexe sportif Salif-Keïta, des cours de tennis... La résidence propose des appartements neufs, du studio au 5 pièces, organisés autour d'espaces verts partagés. Des appartements neufs « prêts à vivre » où le confort des résidents domine. L'ensemble de ce projet immobilier est éligible à la TVA réduite à 5,5% et au prêt à taux zéro. Prix indiqué stationnement inclus et remise incluse. * Conditions détaillées en espace de vente. Contactez-nous dès maintenant !
Autres logements - du programme "VIVAREA"
| Disponibilité | Prix | No | Genre | Pièces | Surface | Étage | Disponibilité | Prix | ||
|---|---|---|---|---|---|---|---|---|---|---|
| Voir | Disponible | 332 659€ | A216 DUPLEX | Appt. | - | 64.11m2 | 2ème | Disponible | 332 659€ | Voir |
| Voir | Disponible | 334 789€ | A205 DUPLEX | Appt. | - | 64.53m2 | 2ème | Disponible | 334 789€ | Voir |
| Voir | Disponible | 340 559€ | A002 DUPLEX | Appt. | - | 72.18m2 | 0-RDC | Disponible | 340 559€ | Voir |
| Voir | Disponible | 387 948€ | A204 DUPLEX | Appt. | - | 76.67m2 | 2ème | Disponible | 387 948€ | Voir |