253 500€ (TVA 20%)
222 869€ (TVA 5.5%)
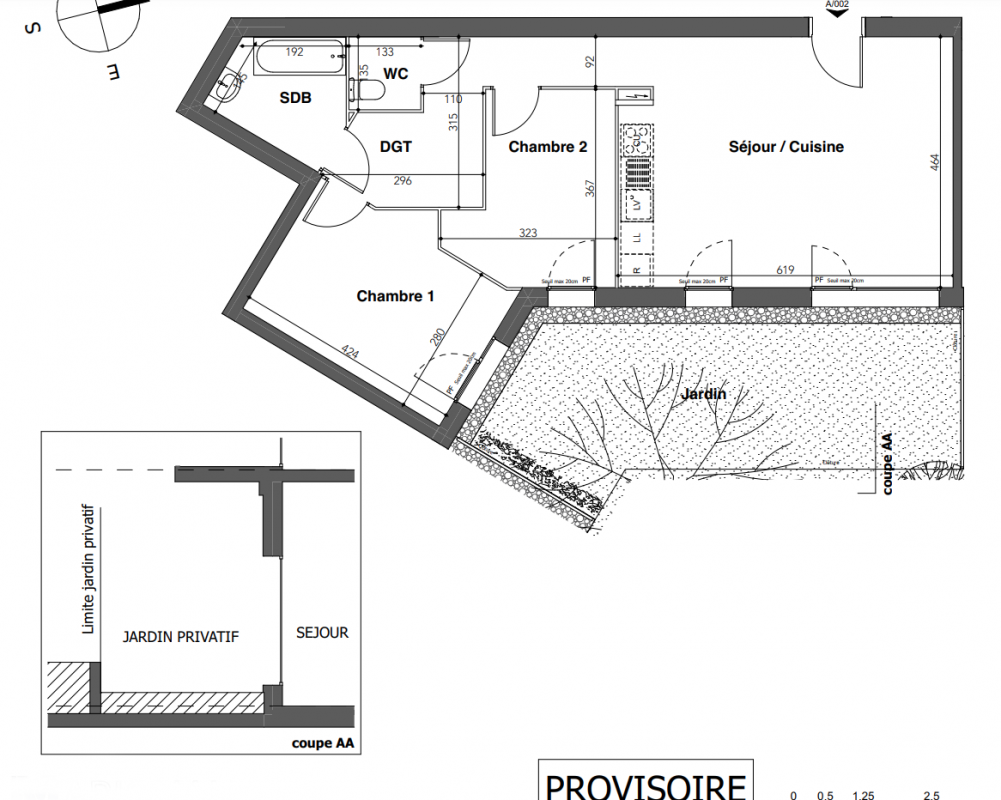
Appt. au 0-RDC
T3
65.49 m²
Est
Stains (93240)
4ème trimestre 2027
01 81 80 39 10
Présentation du programme "Programme neuf Stains (93240)"
NOUVEAU à STAINS ! Devenez propriétaire de votre appartement neuf du 2 au 4 pièces pour le même prix que votre loyer grâce à la TVA réduite à 5,5% ! Localisée rue Jean Jaurès, la résidence bénéficie d’un bel emplacement, à proximité des commerces et services essentiels : boulangerie, restaurants, pharmacie et bureau de poste, accessibles à pied. Les familles apprécieront également la proximité d’une offre scolaire complète, de la maternelle au lycée. Côté transports, la gare RER D Garges-Sarcelles se trouve à seulement 14 minutes* à pied, permettant de rejoindre rapidement le bassin d’emploi de Saint-Denis ou encore Paris Châtelet en 30 minutes. De plus, l’arrêt de bus 225 « Les Prévoyants », situé au pied de la résidence, dessert efficacement la ville et ses points clés tout en reliant les communes voisines grâce à un réseau de bus efficace.Située en entrée de ville dans le quartier Avenir en pleine évolution, à l’ambiance calme et résidentiel, notre nouvelle résidence propose des appartements du 2 au 4 pièces, tous prolongés par un espace extérieur, idéal pour prolonger les espaces de vie. Un local commercial au pied de la résidence s’ajoute aux nombreux commerces implantés dans la rue. Afin d’offrir confort et sécurité, un parking en sous-sol ainsi qu’un local à vélo sont également disponibles. Contactez vite un de nos conseillers pour découvrir tous nos appartements neufs à STAINS et profiter de la TVA réduite à 5,5%
Autres logements T3 du programme "Programme neuf Stains (93240)"
| Disponibilité | Prix | No | Genre | Pièces | Surface | Étage | Disponibilité | Prix | ||
|---|---|---|---|---|---|---|---|---|---|---|
| Voir | Disponible | 261 300€ | A206 | Appt. | T3 | 60.33m2 | 2ème | Disponible | 261 300€ | Voir |
| Voir | Disponible | 275 900€ | A302 | Appt. | T3 | 64.15m2 | 3ème | Disponible | 275 900€ | Voir |
| Voir | Disponible | 294 200€ | A305 | Appt. | T3 | 66.16m2 | 3ème | Disponible | 294 200€ | Voir |
| Voir | Disponible | 264 800€ | A306 | Appt. | T3 | 60.41m2 | 3ème | Disponible | 264 800€ | Voir |
| Voir | Disponible | 267 300€ | A402 | Appt. | T3 | 60.94m2 | 4ème | Disponible | 267 300€ | Voir |
| Voir | Disponible | 282 000€ | A404 | Appt. | T3 | 63.75m2 | 4ème | Disponible | 282 000€ | Voir |
| Voir | Optionné | 251 100€ | B101 | Appt. | T3 | 60.34m2 | 1er | Optionné Mais pas encore vendu 😉 | 251 100€ | Voir |
| Voir | Disponible | 270 300€ | B104 | Appt. | T3 | 64.32m2 | 1er | Disponible | 270 300€ | Voir |
| Voir | Disponible | 279 500€ | B105 | Appt. | T3 | 65.7m2 | 1er | Disponible | 279 500€ | Voir |
| Voir | Disponible | 268 600€ | B202 | Appt. | T3 | 63.56m2 | 2ème | Disponible | 268 600€ | Voir |
| Voir | Disponible | 271 200€ | B204 | Appt. | T3 | 64.32m2 | 2ème | Disponible | 271 200€ | Voir |
| Voir | Disponible | 285 800€ | B205 | Appt. | T3 | 65.7m2 | 2ème | Disponible | 285 800€ | Voir |
| Voir | Disponible | 275 900€ | B302 | Appt. | T3 | 63.51m2 | 3ème | Disponible | 275 900€ | Voir |
| Voir | Disponible | 284 400€ | B303 | Appt. | T3 | 62.94m2 | 3ème | Disponible | 284 400€ | Voir |
| Voir | Disponible | 271 200€ | B401 | Appt. | T3 | 60.66m2 | 4ème | Disponible | 271 200€ | Voir |
| Voir | Disponible | 273 500€ | B402 | Appt. | T3 | 62.17m2 | 4ème | Disponible | 273 500€ | Voir |