Ce lot n’est plus disponible chez VIANOVA ou est vendu.

Vous pouvez revenir dans 24h pour vérifier le stock à jour ou contacter un conseiller Vianova pour vérifier le stock en direct.
Vous pouvez également continuer votre recherche sur notre site « ici ».

Prix
299 000€
Type
Appt. au 2ème
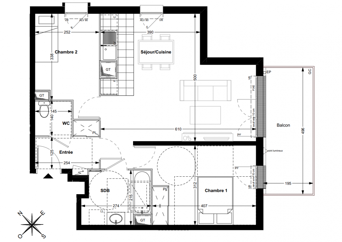
Pièces
T3
Surface
60.51 m²
Exposition
Sud-Est
Ville
Noisy-le-Grand (93160)
Livraison
2ème trimestre 2027
Informations
01 81 80 39 10

Présentation du programme "INTERLUDE"

La Résidence
La résidence "INTERLUDE" est situé le long de la rue de Malnoue qui traverse la ville de Noisy-le-Grand, au centre d'un quartier pavillonnaire calme est à quelques encablures du parc de la "Butte verte", réel poumon vert du quartier.
Elle propose des logements baignés de lumière, allant du T2 au T4 et des maisons T5 avec unagencement qui privilégie l’espace et la convivialité.

Les atouts 

De beaux volumes d'appartements
Des appartements avec terrasses ou balcons
Des places de parking en sous-sol
Des jardins individuels


A proximité 

A moins de 5 min des commerces
A 5 et 15 min à pied des collèges et lycées 
Proche de le Gare du RER (A et E)
Proche des lignes de bus
Proche des futures lignes de métro du Grand Paris Express (lignes 15 et 16) 

Autres logements T3 du programme "INTERLUDE"

Pas de logements disponibles
DO NOT CLICK