Prix
517 536€
Type
Appt. au 5ème
Pièces
T5
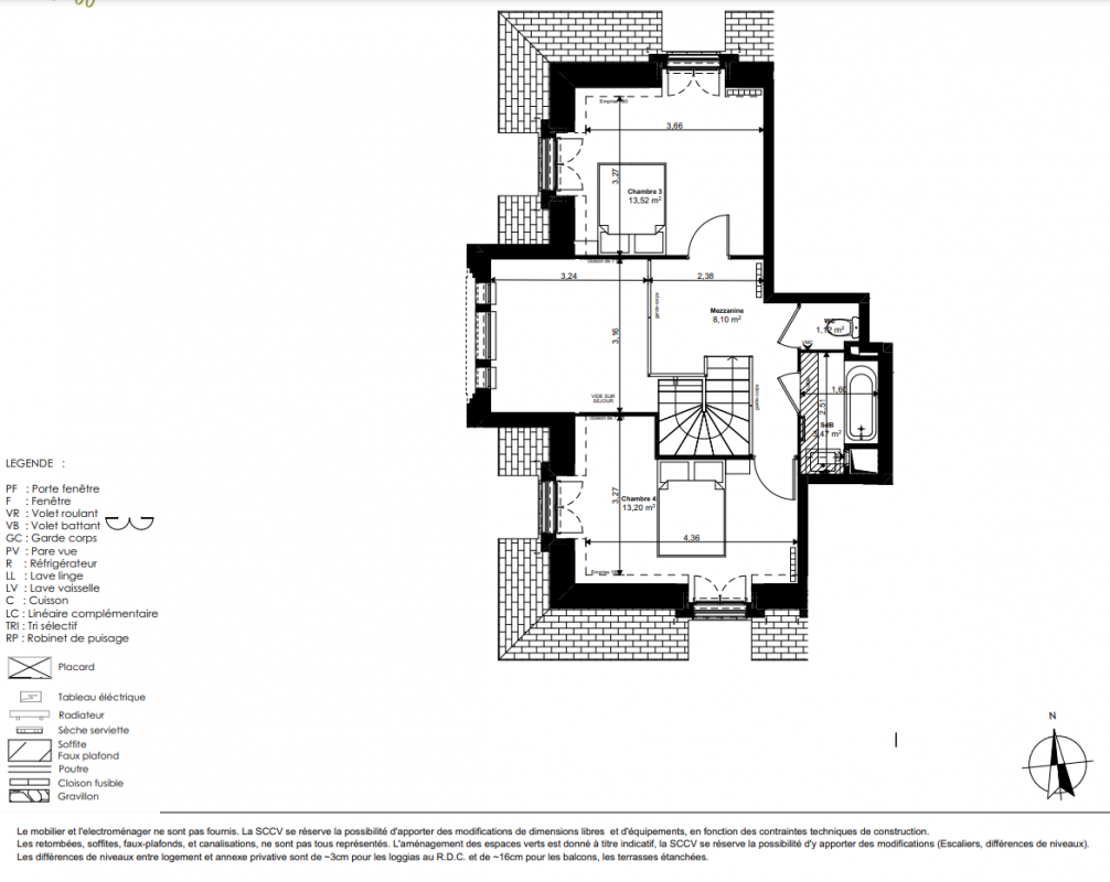
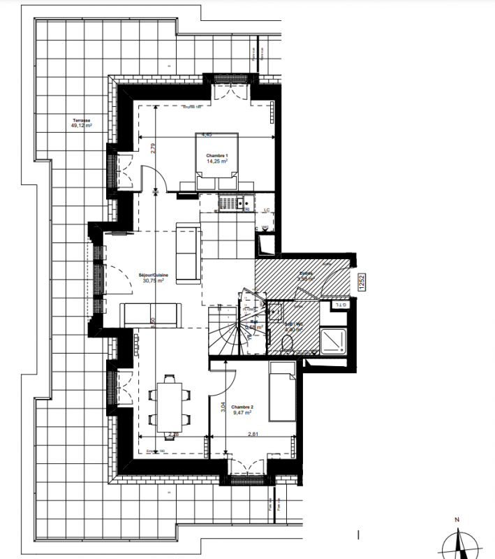
Surface
102.53 m²
Exposition
-
Ville
Le Blanc-Mesnil (93150)
Livraison
1er trimestre 2025
Informations
01 81 80 39 10

Présentation du programme "Village Eiffel 2 - Lot 2"

Idéalement implantée à proximité immédiate d’un futur parc de 6,8 hectares, cette réalisation propose un cadre de vie unique, combinant nature préservée et dynamisme urbain. Les appartements, allant du 2 au 5 pièces, ont été conçus pour optimiser la luminosité et les volumes. Chaque logement bénéficie d’un espace extérieur généreux – balcon ou terrasse – offrant une véritable parenthèse de sérénité au cœur de la ville. Au centre de la résidence, un vaste îlot paysager dévoile une composition végétale riche et variée, agrémentée de cheminements piétons et d’une piste cyclable. Ce jardin, évoluant au fil des saisons, invite à la détente et favorise les échanges entre résidents. Située dans un quartier en pleine mutation, la résidence "Village Eiffel 2" allie modernité et convivialité. Une promenade piétonne animée, bordée de commerces et de services de proximité, enrichit ce nouvel environnement urbain, pensé pour répondre aux attentes des familles et des jeunes actifs. Ces aménagements, privilégiant bien-être et proximité, promettent un cadre de vie à la fois pratique et épanouissant.

Autres logements T5 du programme "Village Eiffel 2 - Lot 2"

Disponibilité Prix Genre Pièces Surface Étage
Voir
Disponible
458 389€ Appt. T5 99.52m2 5ème
Voir
Disponible
462 938€ Appt. T5 101.47m2 5ème
DO NOT CLICK