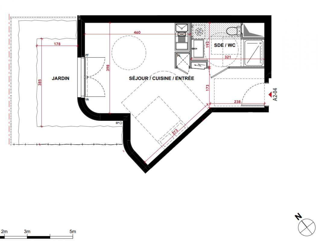
Appt. n°A2 04

Programme "Ora"
Prix
162 000€
Type
Appt. au 0-RDC
Pièces
Studio
Surface
33.49 m²
Exposition
-
Ville
Dugny (93440)
Livraison
4ème trimestre 2028
Informations
01 81 80 39 10

Présentation du programme "Ora"

À Dugny, à seulement 12 km de Paris, découvrez Ora, une nouvelle résidence au coeur d'un quartier verdoyant et apaisé, proche du Village des Médias et du futur métro Grand Paris Express.

Bénéficiez d'un cadre de vie unique, connecté et pratique : à 5 min de la future ligne 17 du Grand Paris Express (Le Bourget), accès rapide à l'A1 et l'A86, commerces, écoles et services à proximité immédiate et au pied d'un parc de 417 ha, Ora s'inscrit dans la continuité du quartier des Jeux Olympiques, déjà salué pour sa réussite urbaine et paysagère.
Devenez propriétaire de votre appartement neuf, du studio au 5 pièces avec jardin, balcon, loggia ou terrasse et bénéficiez du nouveau Prêt à Taux Zéro (PTZ) pour compléter votre financement !

Inscrivez-vous dès maintenant pour faire partie des premiers à découvrir Ora.
Une nouvelle vie vous attend, à Dugny.

Autres logements Studio du programme "Ora"

Disponibilité Prix Genre Pièces Surface Étage
Voir
Disponible
170 000€ Appt. Studio 27.67m2 5ème
Voir
Disponible
165 000€ Appt. Studio 33.2m2 2ème
Voir
Disponible
182 000€ Appt. Studio 33.21m2 3ème
Voir
Disponible
160 000€ Appt. Studio 33.27m2 1er
Voir
Disponible
185 000€ Appt. Studio 33.72m2 4ème
DO NOT CLICK