Prix
299 147€
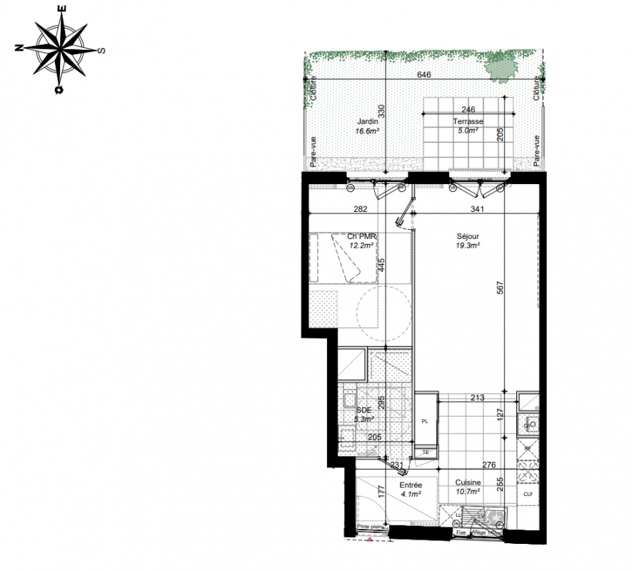
Type
Appt. au 0-RDC
Pièces
T2
Surface
51.7 m²
Exposition
-
Ville
Aubervilliers (93300)
Livraison
2ème trimestre 2027
Informations
01 81 80 39 10

Présentation du programme "Les Rives du canal"

Découvrez une nouvelle résidence signée Alios, composée de 26 appartements du 2 au 5 pièces duplex avec espace extérieur pour la plupart. Les appartements sont traversants et bénéficient de belles expositions. La nature est également mise à l’honneur avec un jardin commun, un mail paysager et le square Roser qui se situe juste à côté de la résidence.

Autres logements T2 du programme "Les Rives du canal"

Disponibilité Prix Genre Pièces Surface Étage
Voir
Disponible
309 384€ Appt. T2 53.3m2 0-RDC
DO NOT CLICK