Prix
221 000€
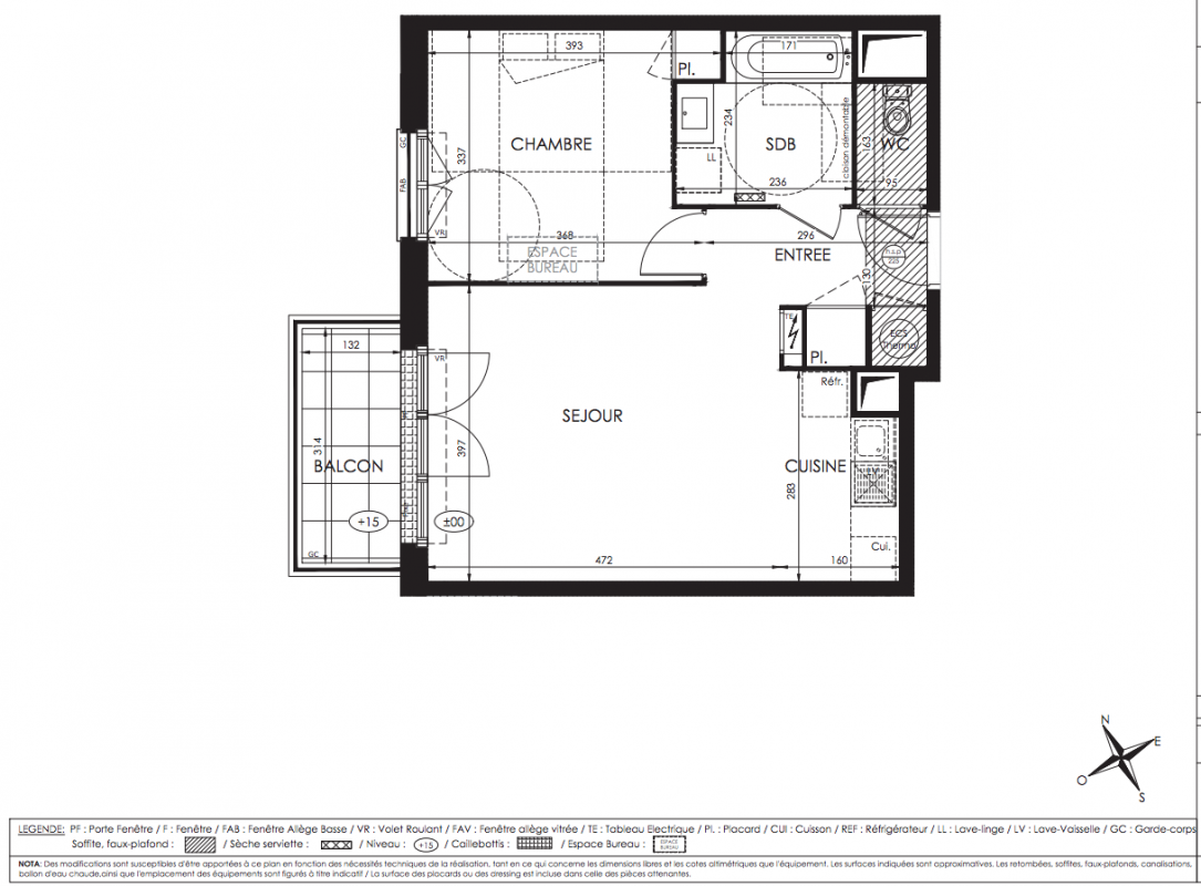
Type
Appt. au 2ème
Pièces
T2
Surface
46.15 m²
Exposition
Ouest
Ville
Saint-Fargeau-Ponthierry (77310)
Livraison
3ème trimestre 2026
Informations
01 81 80 39 10

Présentation du programme "Green Central"

Au calme et proche de tout, une adresse bien-être à Saint-Fargeau-PonthierryÀ 40 km au sud de Paris et à 8 km de Melun, Saint-Fargeau-Ponthierry révèle un cadre de vie des plus épanouissant entre boucle de Seine et grandes forêts. Pour en profiter pleinement, cette adresse s’implante proche du vaste Parc Sachot, à deux pas de toutes les commodités. Commerces, écoles, bibliothèque, piscine, complexe sportif et bus sont accessibles en moins de 5 min* à pied pour un quotidien léger et serein. Parfaitement intégrée dans son environnement, cette nouvelle résidence Kaufman & Broad séduit par son architecture apaisée, ses volumes intimistes et l’ambiance nature qui s’en dégage. Traversée d’une voie douce, elle fait la part belle aux jardins, privatifs et partagés, et dévoile en son sein un parc paysager avec une aire de jeux. Adoptez la sérénité de l’immobilier neuf et découvrez des appartements contemporains, déclinés du 2 au 4 pièces avec jardins et balcons, et 9 maisons individuelles de 3 chambres avec jardin privatif, garage individuel et place de stationnement extérieur pour tous. 

Autres logements T2 du programme "Green Central"

Disponibilité Prix Genre Pièces Surface Étage
Voir
Disponible
206 000€ Appt. T2 40.5m2 2ème