Prix
224 900€
Type
Appt. au 2ème
Pièces
T2
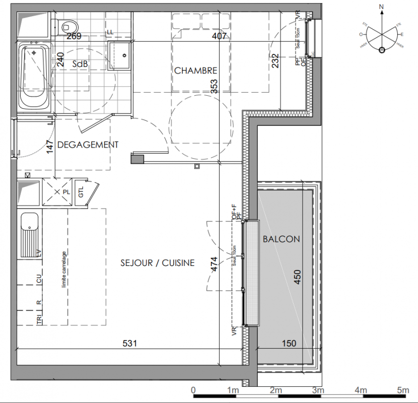
Surface
45.9 m²
Exposition
-
Ville
Melun (77000)
Livraison
1er trimestre 2028
Informations
01 81 80 39 10

Présentation du programme "Be Nature"

AVEC LCL JUSQU’A 50 000E SANS INTERETS EN + DU PRÊT PRINCIPAL ( pour plus de détail contacter votre animateur ou conseiller CAI)

ACHETEZ VOTRE APPARTEMENT NEUF A MELUN

Des appartements neufs au sein de l’écoquartier WOODI à Melun

Découvrez en avant-première la nouvelle réalisation neuve de Vianova sur la commune de Melun en Seine-et-Marne, située à 32 min. de Paris Gare de Lyon en transports en commun*.
Ville en pleine mutation, Melun est concernée par de grands projets urbains dont l’écoquartier WOODI qui met à l’honneur l’écologie et la biodiversité pour une qualité de vie optimale. WOODI rassemble tous les équipements d’un cœur de ville : groupe scolaire, crèche, boulangerie, plaine des sports (déjà livrés), commerces, équipements sportifs, conciergerie, espaces verts et forêt de 13 ha (à venir)…
Pour faciliter vos déplacements, l’écoquartier est desservi par une ligne de bus et sera prochainement relié à la Gare de Melun en moins de 15 min. grâce au TZen2 (horizon 2027)**. En voiture, vous rejoignez l’A5 en 7 min.*
Découvrez l'écoquartier en vidéo sur la page quartier Woody.


Confort, convivialité et qualité de vie à Melun

Située au cœur de l’écoquartier, votre nouvelle résidence signée Vianova, vous offre un accès à tous ses équipements à venir en moins de 5 minutes à pied*.
‘’Be Nature’’ propose des appartements du studio au 4 pièces, tous prolongés par une belle surface extérieure*** et organisés autour d’un grand cœur d’ilot paysager. Les appartements bénéficieront d’une place de stationnement (sauf les studios).
La résidence est certifiée NF Habitat HQE et dispose de l’attestation de respect de la réglementation environnementale RE2020, gage de performance énergétique et d’une plus grande qualité de logement.
L’ensemble de l’opération est éligible à la TVA réduite à 5,5 %****.

*source : Google Maps, temps indicatifs. **source : www.tzen2.com. ***Balcon, loggia, terrasse ou jardin. ****voir renseignements et conditions sur notre site www.ca-immobilier.fr.



Promoteur national et tout particulièrement présent en Ile-de-France depuis plus de 25 ans, Vianova vous propose, en tant qu’expert de la promotion immobilière, la résidence ‘’Be Smart’’ située à Melun. N’hésitez pas à nous contacter pour votre projet de résidence principale ou d’investissement locatif en VEFA à Melun.

Autres logements T2 du programme "Be Nature"

Disponibilité Prix Genre Pièces Surface Étage
Voir
Disponible
218 170€ Appt. T2 43.1m2 1er
Voir
Disponible
218 740€ Appt. T2 43.1m2 2ème
Voir
Disponible
222 050€ Appt. T2 42.1m2 3ème
Voir
Disponible
213 860€ Appt. T2 42.1m2 2ème
Voir
Disponible
226 570€ Appt. T2 43.1m2 3ème
Voir
Disponible
229 630€ Appt. T2 45.9m2 3ème
Voir
Disponible
220 900€ Appt. T2 45.9m2 1er
Voir
Disponible
222 620€ Appt. T2 43.1m2 2ème
Voir
Disponible
209 579€ Appt. T2 42.1m2 1er
DO NOT CLICK