Prix
264 000€
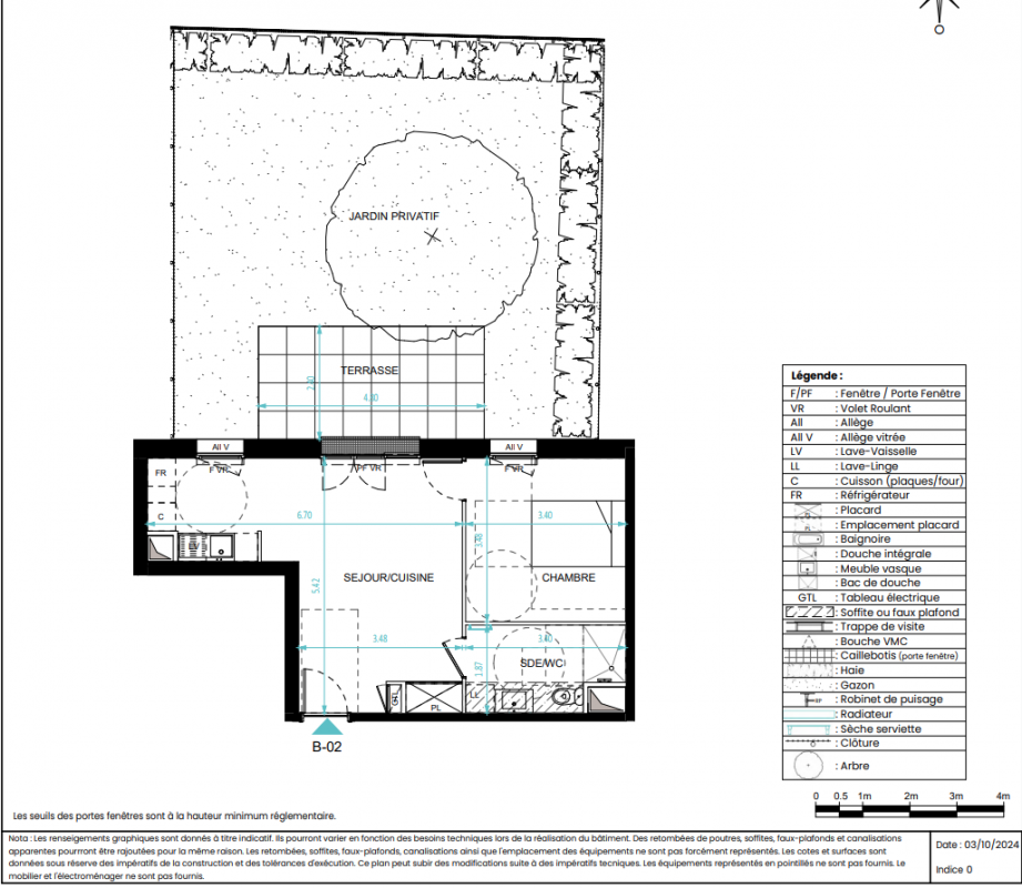
Type
Appt. au 0-RDC
Pièces
T2
Surface
42.68 m²
Exposition
-
Ville
Magny-le-Hongre (77700)
Livraison
3ème trimestre 2027
Informations
01 81 80 39 10

Présentation du programme "La Magny'fiée"

[NOUVEAU DISPOSITIF JEANBRUN : réduisez vos impôts et augmentez votre rentabilité !]

Découvrez votre nouvelle résidence « La Magny'fiée » implantée au coeur d'une zone résidentielle de Magny-le-Hongre, elle vous offre un cadre de vie agréable grâce à sa proximité avec les espaces verts et les commodités locales. Elle est composée de 72 logements (du studio au 5 pièces), dont 5 maisons, bien agencés et proposant des prestations de qualité. Tous les appartements disposent de balcon, loggia, terrasse ou jardin privatif. Parking inclus.

UNE QUESTION ? BESOIN D'AIDE ?

Autres logements T2 du programme "La Magny'fiée"

Disponibilité Prix Genre Pièces Surface Étage
Voir
Optionné
206 000€ Appt. T2 34.31m2 2ème
Voir
Disponible
249 000€ Appt. T2 41.85m2 1er
Voir
Disponible
251 000€ Appt. T2 41.85m2 2ème
Voir
Disponible
263 000€ Appt. T2 43.37m2 1er
Voir
Disponible
278 000€ Appt. T2 48.62m2 1er
DO NOT CLICK