Prix
249 000€
Type
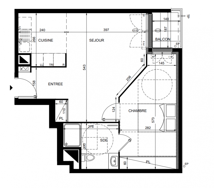
Appt. au 1er
Pièces
T2
Surface
48.58 m²
Exposition
Ouest
Ville
Chelles (77500)
Livraison
3ème trimestre 2026
Informations
01 81 80 39 10

Présentation du programme "Le Clos Chantereine"

Une résidence élégante proche de toutPour investir aux portes de Paris, optez pour une commune attractive, dynamique et connectée. Avec plus de 54 000 habitants, Chelles est la deuxième ville la plus peuplée de Seine-et-Marne avec une forte demande locative. Les raisons de son succès ? Un centre-ville agréable et animé, une offre culturelle et sportive complète, de nombreux espaces naturels et une desserte efficace. Depuis sa gare, le Transilien P rejoint Paris Est en 14 min**, le RER E relie Magenta en 26 min** et la gare Saint-Lazare en 37 min**. L’arrivée de la ligne 16 du Grand Paris Express placera la ville à 28 min de Roissy et 40 min d’Orly. À 12 km* de la porte de Vincennes, Chelles s’entoure également des principaux axes routiers de l’Est parisien, dont l’A4, l’A86 et l’A104. Stratégiquement situé, votre bien répond aux plus hautes exigences de l’immobilier neuf, gage d’un succès locatif et patrimonial incontournable. Possibilité de réaliser un investissement en Pinel avec un permis de construire obtenu et purgé.  * Source : Google Maps ** Source : https://www.ratp.fr 

Autres logements T2 du programme "Le Clos Chantereine"

Disponibilité Prix Genre Pièces Surface Étage
Voir
Disponible
253 000€ Appt. T2 48.69m2 3ème