Ce lot n’est plus disponible chez VIANOVA ou est vendu.

Vous pouvez revenir dans 24h pour vérifier le stock à jour ou contacter un conseiller Vianova pour vérifier le stock en direct.
Vous pouvez également continuer votre recherche sur notre site « ici ».

Prix
406 000€
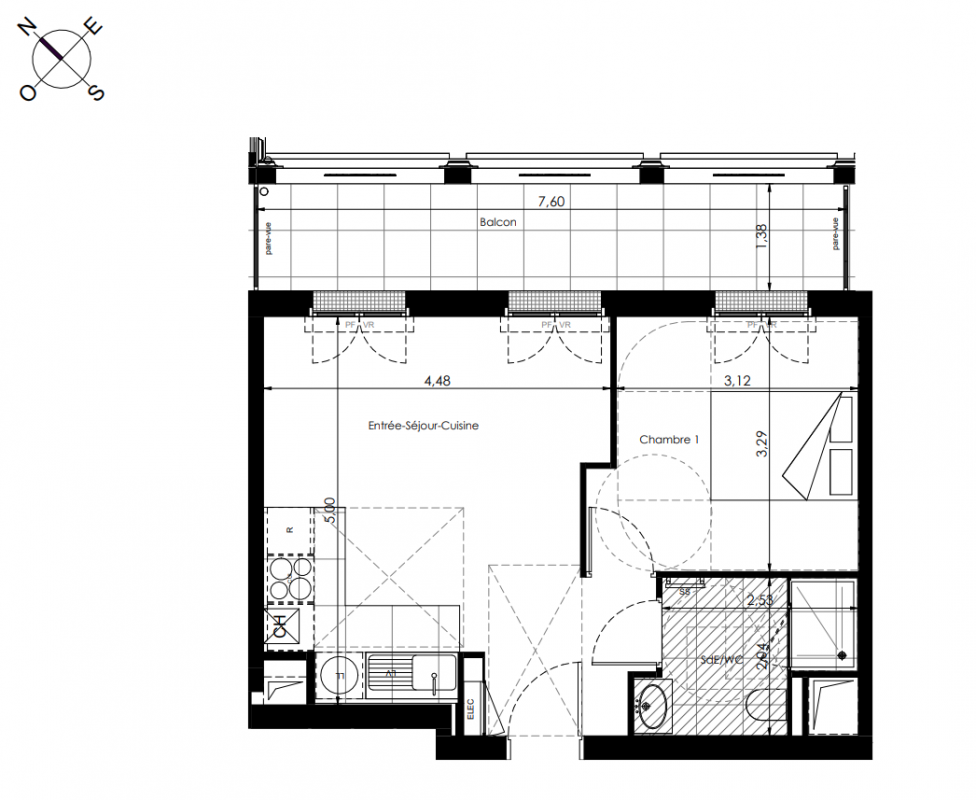
Type
Appt. au 4ème
Pièces
T2
Surface
39.1 m²
Exposition
-
Ville
Puteaux (92800)
Livraison
2ème trimestre 2027
Informations
01 81 80 39 10

Présentation du programme "APOSTROPHE"

Aux portes de Paris et à deux pas du quartier d'affaires de La Défense, des commerces et des transports, découvrez une nouvelle adresse de choix. Dans un quartier familial et dynamique à 300 mètres de la gare de Puteaux (lignes L, U, Tramway T2, bus etc..), la résidence APOSTROPHE vous propose de beaux appartements de standing du 2 au 4 pièces. Son architecture élégante d'inspiration bourgeoise offre à chaque appartement des espaces extérieurs agréables. Profitez ainsi de séjours ouverts sur des jardins privatifs en rez-de-chaussée, des balcons et des terrasses plein-ciel avec des vues privilégiées et dégagées.

Unique, deux appartements d'exception au dernier étage possèdent de larges terrasses avec des vues apaisantes.

Des places de stationnement en sous-sol et des caves (suivant disponibilité) complètent cette belle résidence.

Autres logements T2 du programme "APOSTROPHE"

Disponibilité Prix Genre Pièces Surface Étage
Voir
Disponible
439 000€ Appt. T2 44.05m2 4ème
Voir
Disponible
429 000€ Appt. T2 44.05m2 3ème