Prix
332 000€
Type
Appt. au 5ème
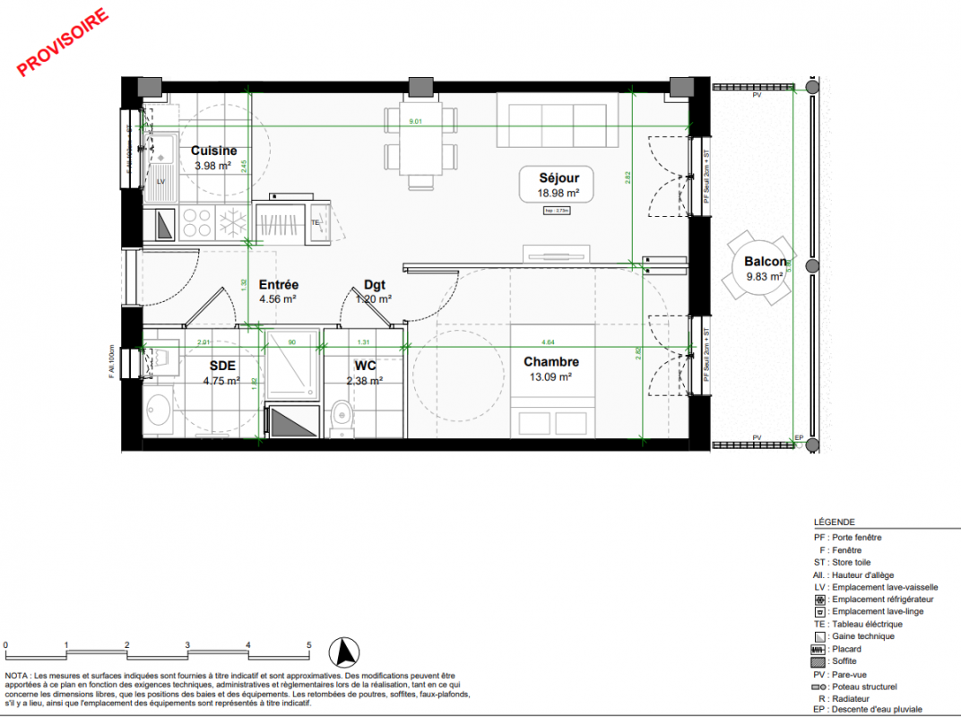
Pièces
T2
Surface
48.96 m²
Exposition
Est
Ville
Bagneux (92220)
Livraison
3ème trimestre 2028
Informations
01 81 80 39 10

Présentation du programme "LE HAUT BOIS"


 Revêtement de sol en parquet bois contrecollé dans les entrées, séjours et chambres
Carrelage en grès cérame dans les cuisines, salles de bain et d'eau
Salle de bains et salle d'eau avec faïence toute hauteur au droit de chaque côté de la baignoire/douche, meuble vasque avec miroir, bandeau lumineux et sèche-serviettes
Lave-mains dans les WC indépendants
Menuiseries extérieures bois
Chauffage : raccordé au réseau de chaleur urbain

Autres logements T2 du programme "LE HAUT BOIS"

Disponibilité Prix Genre Pièces Surface Étage
Voir
Optionné
317 000€ Appt. T2 48.82m2 1er
Voir
Optionné
314 000€ Appt. T2 45.53m2 4ème
DO NOT CLICK