Ce lot n’est plus disponible chez VIANOVA ou est vendu.
Vous pouvez revenir dans 24h pour vérifier le stock à jour ou contacter un conseiller Vianova pour vérifier le stock en direct.
Vous pouvez également continuer votre recherche sur notre site « ici ».
201 100€
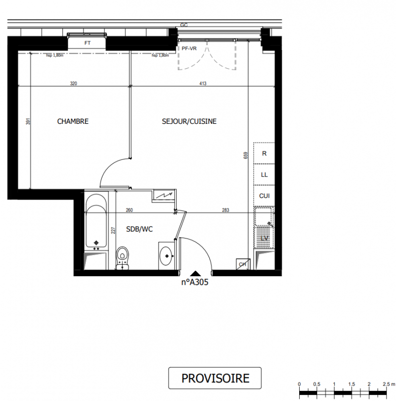
Appt. au 3ème
T2
41.2 m²
Nord-Est
Quincy-sous-Sénart (91480)
3ème trimestre 2027
01 81 80 39 10
Présentation du programme "Programme neuf Quincy-sous-Sénart (91480)"
Devenez propriétaire de votre résidence principale à Quincy-sous-Sénart en bénéficiant de tous les avantages d'un logement neuf ! Ou investissez dans l'immobilier neuf avec le dispositif LLI et profitez de nombreux avantages !Voisine de Brunoy, Mongteron ou bien encore Yerres, Quincy-sous-Sénart offre un équilibre parfait entre cadre de vie verdoyant et dynamisme urbain. Cette commune prisée de l’Essonne séduit par son ambiance familiale et son environnement naturel préservé, tout en restant connectée aux grands pôles urbains. Notre résidence, idéalement située en plein cœur de la ville, bénéficie d’une position stratégique à proximité immédiate des commerces et services pour le quotidien. En face de la résidence, se trouve le marché municipal, une pharmacie, des restaurants et la banque postale. Pour une offre plus variée, le centre commercial Val d’Yerres se situe à seulement 4 min* en voiture. Les démarches administratives sont également facilitées grâce à la proximité de la mairie, située à 7 min* à pied. Côté transports, la gare RER D Boussy-Saint-Antoine est accessible en seulement 3 min* en bus depuis la résidence ou en 12 min* à pied. Elle permet de rejoindre rapidement Paris Gare de Lyon en moins de 40 min*. Plusieurs lignes de bus assurent également des liaisons avec les communes voisines et les principaux pôles économiques de la région. La proximité des grands axes routiers tels que la N104 et la N6 garantit une mobilité fluide en voiture. Les familles apprécieront la qualité de l’offre éducative, avec l’école maternelle Saint-Exupéry et l’école élémentaire Maurice Lahaye situées respectivement à 3 et 5 min* à pied assurant un apprentissage de qualité et à quelques minutes de la résidence. La ville met également à disposition de ses habitants des équipements sportifs et culturels variés, tels que le stade Maurice Perraguin, le Quincy Tennis club ou encore le conservatoire et les salles municipales qui s’animent tout au long de l’année. Les vastes espaces verts de Quincy-sous-Sénart invitent quant à eux aux promenades et aux activités de plein air. Notre nouvelle résidence se décline en appartements, du studio au 4 pièces, dont certains disposent de balcons ou de jardins privatifs. Pour assurer confort et votre sécurité, un parking en sous-sol ainsi qu’un local à vélos sont mis
Autres logements T2 du programme "Programme neuf Quincy-sous-Sénart (91480)"
| Disponibilité | Prix | No | Genre | Pièces | Surface | Étage | Disponibilité | Prix | ||
|---|---|---|---|---|---|---|---|---|---|---|
| Voir | Archivé | 196 900€ | A107 | Appt. | T2 | 40m2 | 1er | Archivé | 196 900€ | Voir |
| Voir | Archivé | 205 400€ | A206 | Appt. | T2 | 42.8m2 | 2ème | Archivé | 205 400€ | Voir |
| Voir | Archivé | 205 200€ | A207 | Appt. | T2 | 40m2 | 2ème | Archivé | 205 200€ | Voir |
| Voir | Archivé | 213 800€ | A304 | Appt. | T2 | 38.7m2 | 3ème | Archivé | 213 800€ | Voir |
| Voir | Archivé | 199 800€ | A102 | Appt. | T2 | 39.6m2 | 1er | Archivé | 199 800€ | Voir |
| Voir | Archivé | 223 600€ | A103 | Appt. | T2 | 46.5m2 | 1er | Archivé | 223 600€ | Voir |
| Voir | Archivé | 192 300€ | A104 | Appt. | T2 | 40.1m2 | 1er | Archivé | 192 300€ | Voir |
| Voir | Archivé | 221 400€ | A110 | Appt. | T2 | 43.6m2 | 1er | Archivé | 221 400€ | Voir |
| Voir | Archivé | 195 500€ | A111 | Appt. | T2 | 39.1m2 | 1er | Archivé | 195 500€ | Voir |
| Voir | Archivé | 203 100€ | A202 | Appt. | T2 | 39.6m2 | 2ème | Archivé | 203 100€ | Voir |
| Voir | Archivé | 227 900€ | A203 | Appt. | T2 | 46.5m2 | 2ème | Archivé | 227 900€ | Voir |
| Voir | Archivé | 213 900€ | A210 | Appt. | T2 | 43.6m2 | 2ème | Archivé | 213 900€ | Voir |
| Voir | Archivé | 208 500€ | A309 | Appt. | T2 | 39.8m2 | 3ème | Archivé | 208 500€ | Voir |