384 000€
Appt. au 6ème
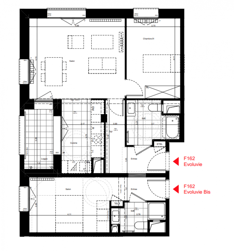
T3
69.1 m²
Nord-Ouest
Palaiseau (91120)
4ème trimestre 2026
01 81 80 39 10
Présentation du programme "LE CENTRAL QUIETUDE"
Le nouveau quartier « Le Central » réalisé par Pitch immo en copromotion avec Demathieu Bard Immobilier et Sogeprom est situé sur le plateau de Paris Saclay, reconnu comme un centre universitaire, économique et scientifique d’excellence, tout en étant proche des centres-villes de Palaiseau et Orsay, ainsi que d’un environnement paysager riche et qualitatif. A quelques minutes à pied, vous disposez d’accès facilités à plusieurs lignes de bus gares RER puis à l’horizon 2026 le métro 18 à 500m. Vous bénéficierez des commerces, services ou écoles à quelques minutes à pieds ou dans un rayon de 15 minutes en voiture. Cette résidence est idéale pour vous constituer un patrimoine immobilier de qualité. A proximité de bassins d’emplois (Thales, Danone, Sanofi, Safran…) et universitaires (CNRS, Université Paris-Saclay, Polytechnique, ENSAE, HEC, TELECOM Paris, Centrale Supelec…) le secteur à Palaiseau sera très recherché, notamment avec la nouvelle ligne de métro 18.

