18 700€
532 100€
- €
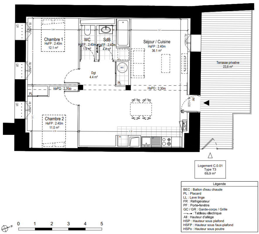
Type
Appt. au 0-RDC
Pièces
T3
Surface
69.8 m²
Exposition
Nord
Ville
Montgeron (91230)
Livraison
3ème trimestre 2027
Informations
01 81 80 39 10

Présentation du programme "LE MOULIN DE SENLIS DF"

Sur les bords de l’Yerres, à deux pas du centre-ville de Montgeron dans le département de l’Essonne (91), se dresse le Moulin de Senlis, un ensemble de caractère, aux accents d’architecture baroque et néo-gothique.

La position géographique du département de l’Essonne est l’un de ses atouts principaux. Situé au sud de Paris, le département bénéficie d’un savant mélange entre un nord urbanisé et dynamique et un sud vert et paisible. Une position unique grâce à ses axes majeurs de communication, au coeur d’un réseau d’échanges et de transports internationaux.

Pour répondre à la demande du marché immobilier de la ville et palier à la carence de logements de petites surfaces, les équipes d’Histoire & Patrimoine ont fait le choix d’aménager des appartements de petites typologies.

Demain, cet ensemble sera aménagé en 25 appartements associant le charme l’ancien au confort du récent. Certains seront prolongés d’un espace extérieur (balcon ou terrasse) et quelques-uns organisés en duplex avec de belles hauteurs sous-plafond. Les locaux au rez-de-chaussée seront conservés par la Mairie.

Autres logements T3 du programme "LE MOULIN DE SENLIS DF"

Disponibilité Prix Genre Pièces Surface Étage
Voir
Optionné
487 400€ Appt. T3 57.6m2 2ème
DO NOT CLICK