Prix
349 649€  (TVA 20%)
307 400€  (TVA 5.5%)
Type
Appt. au 3ème
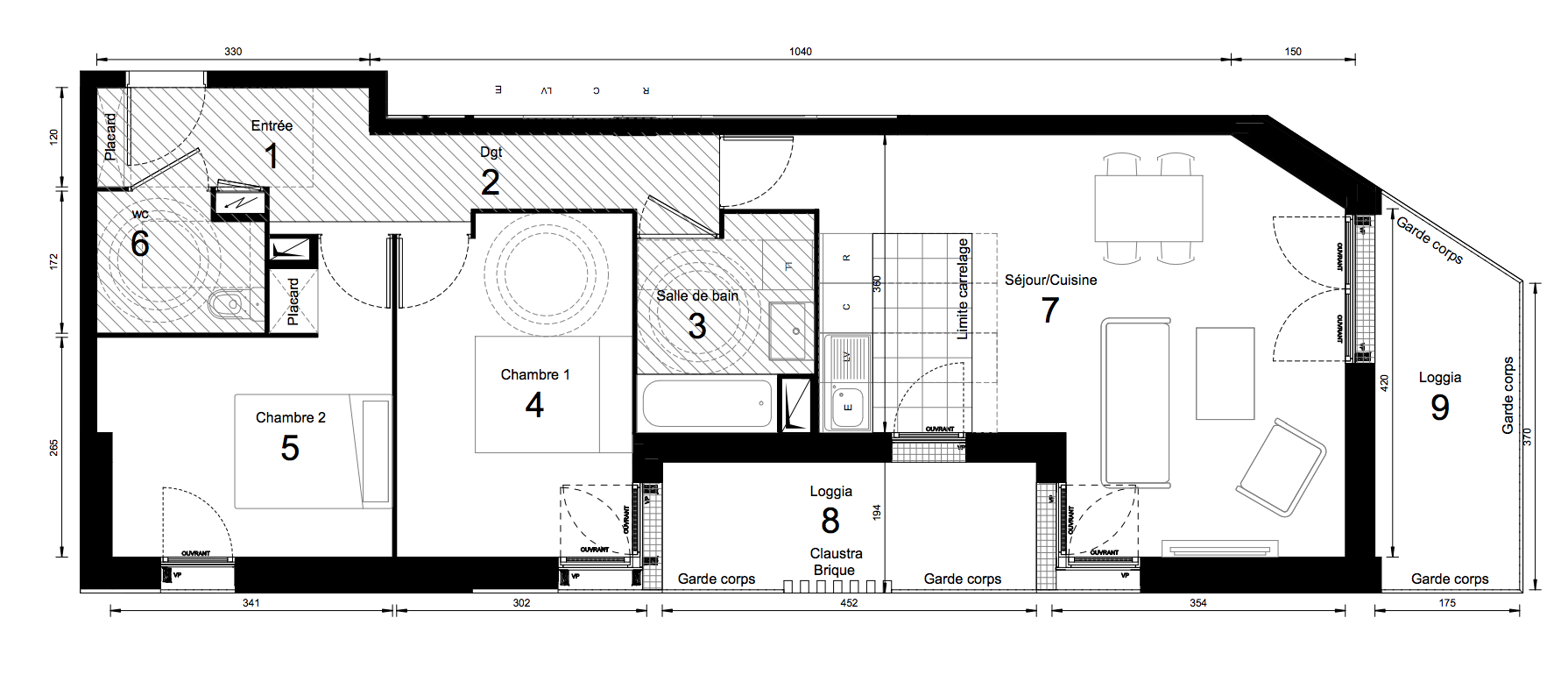
Pièces
T3
Surface
67 m²
Exposition
Est
Ville
Massy (91300)
Livraison
4ème trimestre 2027
Informations
01 81 80 39 10

Présentation du programme "URBAN EDEN"

Venez vite vous renseigner sur notre nouvelle résidence URBAN EDEN une adresse à l'Esprit Nature dans un quartier en plein essor. Du studio au 5P duplex, les appartements se déclinent en une grande variété de typologies afin de répondre à toutes les envies et tous les styles de vie. Réservant des intérieurs généreux aux prestations de choix, ils offrent notamment de beaux séjours cuisines conviviaux, éclairés par de larges baies vitrées. Profiter d'un espace extérieur à soi est un vrai privilège en ville. Garanti pour la grande majorité des logements, il se présente sous forme de balcon, loggia, jardin privatif. Les logements éligibles à la TVA à taux réduit sont soumis à un plafond de prix au m2 de surface utile, de 4 168 hors taxe/m2, zone A .TVA à taux réduit selon l'article 278 sexies 11° du Code Général des Impôts, sous réserve d'une modification de la réglementation en vigueur. Sous conditions d'éligibilité

Autres logements T3 du programme "URBAN EDEN"

Disponibilité Prix Genre Pièces Surface Étage
Voir
Disponible
338 843€ Appt. T3 62m2 1er
Voir
Disponible
334 834€ Appt. T3 60m2 1er
DO NOT CLICK