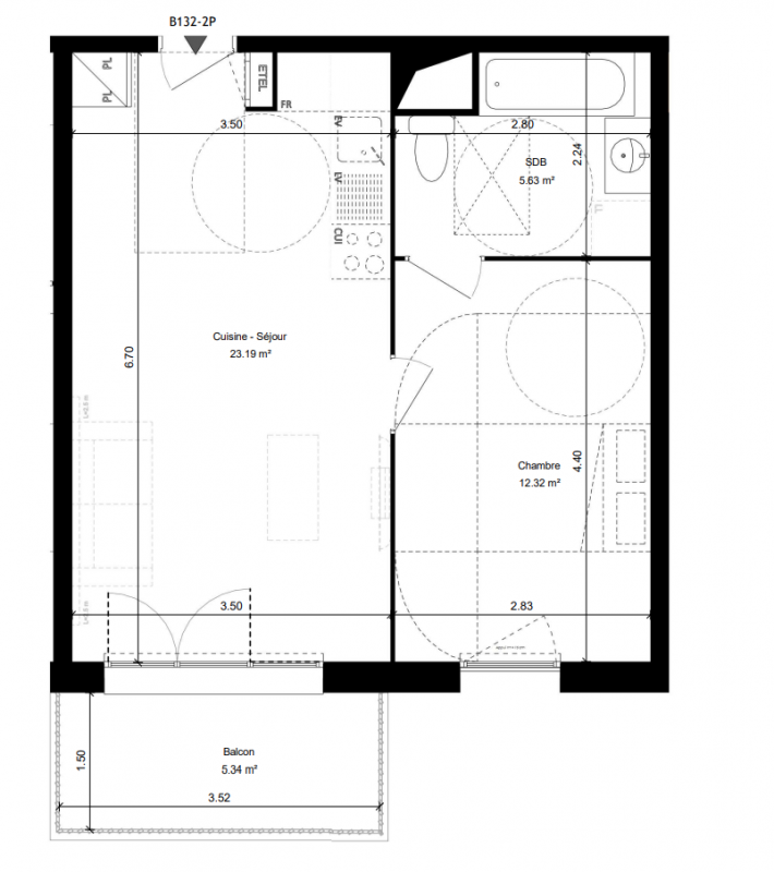
Prix
194 500€
Type
Appt. au 3ème
Pièces
T2
Surface
41.13 m²
Exposition
-
Ville
Le Coudray-Montceaux (91830)
Livraison
1er trimestre 2028
Informations
01 81 80 39 10

Présentation du programme "La Ferme du Bois de l'Ecu"

Fair' Promotion a le plaisir d'annoncer le lancement commercial de son nouveau programme immobilier « La Ferme du Bois de l'Ecu », situé au 1 bis avenue Charles de Gaulle, dans un quartier résidentiel paisible, à deux pas des berges de Seine et du centre-ville.

Ce projet d'envergure prévoit la réalisation d'une résidence de trois bâtiments dont les logements, du studio au 5 pièces, sont tous dotés d'un espace extérieur (balcon, terrasse ou jardin privatif). Intégrée harmonieusement à l'architecture locale, La Ferme du Bois de l'Ecu proposera un cadre de vie privilégié autour d'un coeur d'îlot paysager.

À cette occasion de son lancement commercial, Fair' Promotion offre les frais de notaire et offre jusqu'à 8 000 euros de remise.

Autres logements T2 du programme "La Ferme du Bois de l'Ecu"

Disponibilité Prix Genre Pièces Surface Étage
Voir
Disponible
196 500€ Appt. T2 42m2 3ème
DO NOT CLICK