Prix
197 000€
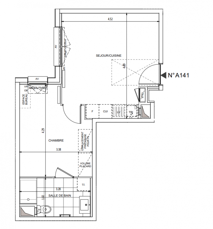
Type
Appt. au 4ème
Pièces
T2
Surface
38.31 m²
Exposition
Nord
Ville
Chilly-Mazarin (91380)
Livraison
2ème trimestre 2027
Informations
01 81 80 39 10

Présentation du programme "LES BALCONS DE CHILLY"

Bordée par un aménagement paysager harmonieux et soigné, cette nouvelle résidence se veut l’alliée de votre bien-être. Nichée dans un quartier paisible à 13 min** à pied du cœur de Chilly-Mazarin et de son animation, elle arbore d’élégantes façades contemporaines faisant la part belle aux espaces extérieurs dont tous les appartements sont pourvus : balcons, terrasses ou jardins privatifs... Déclinés du studio au 5 pièces, dont des 3 pièces évolutifs, les appartements sauront répondre à tous vos projets, résidentiels ou locatifs.

Autres logements T2 du programme "LES BALCONS DE CHILLY"

Disponibilité Prix Genre Pièces Surface Étage
Voir
Optionné
235 000€ Appt. T2 46.09m2 3ème
Voir
Optionné
225 000€ Appt. T2 40.83m2 3ème
Voir
Optionné
224 000€ Appt. T2 43.53m2 2ème
DO NOT CLICK