Prix
153 212€
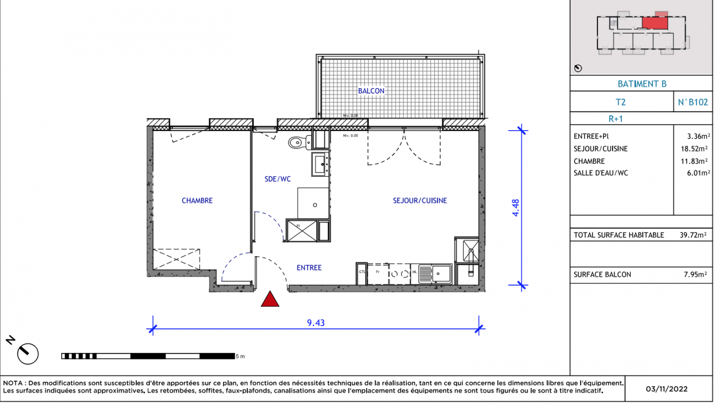
Type
Appt. au 1er
Pièces
T2
Surface
39.72 m²
Exposition
Nord-Est
Ville
Valenciennes (59300)
Livraison
-
Informations
01 81 80 39 10

Présentation du programme "LE DOMAINE"

Programme neuf VALENCIENNES (59300). Prenez contact avec Vianova pour plus d'informations!

Autres logements T2 du programme "LE DOMAINE"

Disponibilité Prix Genre Pièces Surface Étage
Voir
Disponible
152 384€ Appt. T2 46.09m2 0-RDC
Voir
Disponible
156 984€ Appt. T2 42.49m2 1er
DO NOT CLICK