Prix
274 500€
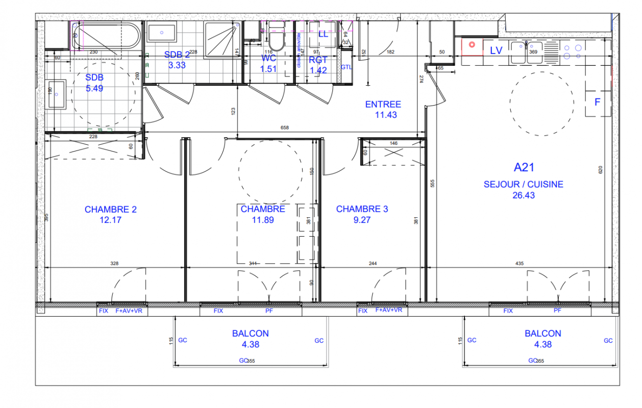
Type
Appt. au 2ème
Pièces
T4
Surface
82.94 m²
Exposition
Nord-Est
Ville
Orchies (59310)
Livraison
2ème trimestre 2027
Informations
01 81 80 39 10

Présentation du programme "Programme neuf Orchies (59310)"

A ORCHIES, devenez propriétaire de votre appartement neuf du 2 au 4 pièces avec balcon ou terrasse, et parking !Entre ville et campagne, notre résidence se situe dans la petite commune recherchée d'Orchies au cœur d'un territoire champêtre typique. Véritable havre de paix, la résidence comprend 28 appartements, du 2 au 4 pièces, tous ouverts sur un espace extérieur : jardin privatif en rez-de-chaussée, balcon ou terrasse au dernier étage. Au quotidien, tout est à portée de main, il vous faudra seulement 2 min à pied pour emmener vos enfants à l'école maternelle ou primaire ou au Collège du Pévèle. A environ 500 m, se trouvent la Place de la Mairie et tous les services du quotidien. Contactez vite un de nos conseillers pour découvrir tous nos appartements neufs à Orchies et profitez de notre offre exclusive !

Autres logements T4 du programme "Programme neuf Orchies (59310)"

Disponibilité Prix Genre Pièces Surface Étage
Voir
Disponible
268 200€ Appt. T4 82.94m2 1er
Voir
Disponible
423 400€ Appt. T4 114.23m2 3ème
Voir
Disponible
409 500€ Appt. T4 113.45m2 3ème
DO NOT CLICK