Prix
285 000€
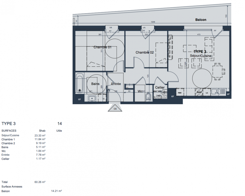
Type
Appt. au 1er
Pièces
T3
Surface
60.26 m²
Exposition
Nord-Est
Ville
Marquette-lez-Lille (59520)
Livraison
1er trimestre 2024
Informations
01 81 80 39 10

Présentation du programme "ARTI"

La résidence ARTI s’inscrit dans un environnement résidentiel calme, à deux pas du centre-ville de Marquette-lez-Lille. Son architecture contemporaine associe une élégante façade en brique grise à des détails en bardage métallique, soulignant une identité moderne et sobre. Les nombreux balcons rythment le bâtiment tout en offrant des espaces extérieurs confortables.Les appartements, du 2 au 4 pièces en plain-pied ou duplex, proposent des volumes lumineux et bien agencés. Une attention pARTIculière a été portée au bien-être des résidents : espaces optimisés, pièces de vie ouvertes, luminosité naturelle et accès systématique à un balcon ou une terrasse.La résidence inclut également des stationnements extérieurs et en sous‑sol, avec possibilité de box fermés, ainsi que des locaux dédiés aux mobilités douces.nEmplacement stratégique, à proximité immédiate de Lille et des principaux axes de transportCadre de vie résidentiel, calme et verdoyant, à quelques minutes des berges de la Deûle et du Canal de RoubaixArchitecture contemporaine alliant modernité, matériaux qualitatifs et éléganceBalcons, terrasses ou espaces extérieurs pour l’ensemble des logementsAppartements lumineux, avec duplex spacieux aux derniers étagesRésidence équipée pour les mobilités douces : deux locaux vélos avec prises de rechargeArrêt de bus « Pont Blanc » au pied de la résidenceAppartements :• Sols souples PVC pour les logements en plain-pied• Carrelage en salle de bain et stratifié dans les pièces de vie pour les duplex• Majorité de logements équipés de baignoires• Celliers pour certains lots• Chauffage gaz• Occultation manuelle dans les chambres (motorisation en option)• Balcon ou terrasse pour tous les appartements• Logements duplex spacieux aux étages supérieursRésidence :• Accès sécurisé par badge Vigik et visiophone• Deux locaux vélos, équipés pour la recharge des vélos et trottinettes électriques• Stationnement extérieur ou en sous-sol (places ouvertes ou box fermés en option)• Bâtiment conforme à la RT 2012• Carré potager partagé pour les résidentsÀ proximité, à pied :• Arrêt de bus « Pont Blanc » au pied de la résidence (L14, L86, L5 et L91)• Centre-ville de Marquette-lez-Lille à 4 min*• La Madeleine à 10 min*• Marcq-en-Barœul à 11 min*• Centre-ville de Lille à 20 min*En voiture :• Gares Lille Flandres et Lille Europe à 20 min*Mobilité et accessibilité :• Nouvelle ligne de tramway en cours de déploiement, avec deux stations prévues à Marquette-lez-Lille• Parcs à vélos sécurisés d

Autres logements T3 du programme "ARTI"

Disponibilité Prix Genre Pièces Surface Étage
Voir
Disponible
290 000€ Appt. T3 62.23m2 1er
Voir
Disponible
295 000€ Appt. T3 62.23m2 2ème
Voir
Disponible
290 000€ Appt. T3 60.26m2 2ème
Voir
Disponible
375 000€ Appt. T3 77m2 3ème
Voir
Disponible
317 000€ Appt. T3 68.44m2 3ème
Voir
Disponible
370 000€ Appt. T3 75.81m2 3ème
Voir
Disponible
390 000€ Appt. T3 79.51m2 3ème
Voir
Disponible
345 000€ Appt. T3 73.14m2 3ème
DO NOT CLICK