Ce lot n’est plus disponible chez VIANOVA ou est vendu.
Vous pouvez revenir dans 24h pour vérifier le stock à jour ou contacter un conseiller Vianova pour vérifier le stock en direct.
Vous pouvez également continuer votre recherche sur notre site « ici ».
424 000€
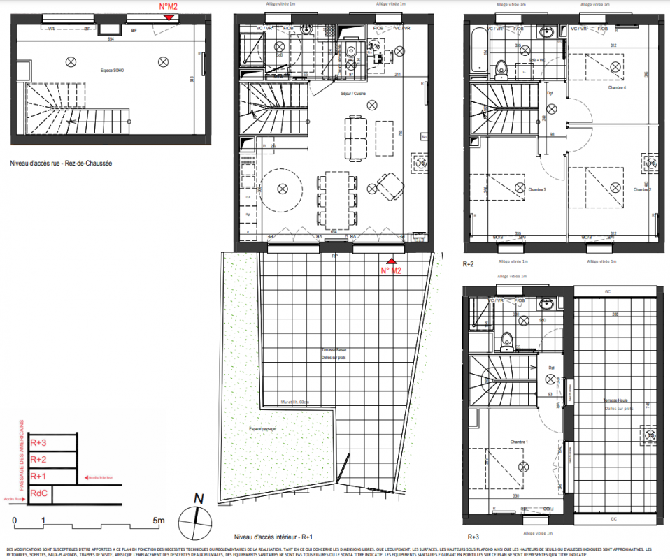
Appt. au 0-RDC
T5
143.14 m²
Sud
Dunkerque (59140)
1er trimestre 2026
01 81 80 39 10
Présentation du programme "BÔ BOURG"
LE PRINTEMPS DE L'IMMO : Dernières maisons disponibles en coeur de ville de Dunkerque - Frais de notaire offerts !LIVRAISON IMMINENTE, POSEZ VOS VALISES A DUNKERQUE !Venez visiter notre appartement-maison témoin meublé et entirement décoré et choisissez le bien qui vous ressemble.
Appartement 5 pièces : de 142 à 144 m² – plusieurs terrasses de 55 à 64 m² – orienté sud – 4 chambres dont une parentale avec salle de bains équipée et terrasse privative – 2 parkings sécurisés en sous-sol.
Votre appartement pensé comme une maison de ville : 4 chambres (dont 1 suite parentale), bel espace de vie avec cuisine ouverte sur une grande terrasse extérieure entièrement végétalisée, 2 salles de bains équipées avec prestations haut de gamme (parquet contrecollé, carrelage et faïence de qualité, menuiseries aluminium, fibre optique…).
*Frais de notaire offerts, offre valable pour les 4 prochains réservataires, sous conditions de la signature d'un contrat de réservation jusqu'au 30/04/2026 et à la réitération de l’acte authentique de vente dans les 3 mois qui suivent la réservation.
Autres logements T5 du programme "BÔ BOURG"
| Disponibilité | Prix | No | Genre | Pièces | Surface | Étage | Disponibilité | Prix | ||
|---|---|---|---|---|---|---|---|---|---|---|
| Voir | Archivé | 404 000€ | M01 | Appt. | T5 | 143.5m2 | 0-RDC | Archivé Mais pas encore vendu 😉 | 404 000€ | Voir |
| Voir | Archivé | 439 000€ | M04 | Appt. | T5 | 142.58m2 | 0-RDC | Archivé | 439 000€ | Voir |
| Voir | Archivé | 445 000€ | M05 | Appt. | T5 | 144.38m2 | 0-RDC | Archivé Mais pas encore vendu 😉 | 445 000€ | Voir |