Prix
399 000€
Type
Appt. au 2ème
Pièces
T3
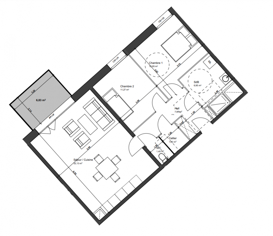
Surface
74.29 m²
Exposition
Nord-Ouest
Ville
Croix (59170)
Livraison
4ème trimestre 2025
Informations
01 81 80 39 10

Présentation du programme "Programme neuf Croix (59170)"

Les 30 jours Flash ! Faites la meilleure affaire de fin d’année à CROIX et emménagez immédiatement ! Jusqu’à 25 000 euros de remise et frais de notaire offerts. Achetez votre appartement neuf en livraison immédiate ! Venez visiter notre appartement décoré et vous projeter dans votre futur logement !A moins de 10 km au nord-est de Lille, découvrez notre nouvelle résidence à Croix, inscrite dans un environnement très privilégié de belles villas noyées dans la verdure. Située non loin de l'entrée du magnifique Parc Barbieux, sa jolie façade s'élève sur 2 étages et abrite des appartements du 2 au 4 pièces, aux vastes surfaces intérieures, tous prolongés par un balcon ou une loggia.Clôturée et sécurisée, elle propose un espace de jeux privatif réservé aux enfants. Idéalement placée en face de l'arrêt "Villa Cavrois" de la ligne R du tramway, vous pourrez facilement vous rendre d'un côté à Lille et de l'autre à Roubaix.Contactez vite un de nos conseillers pour découvrir tous nos logements neufs à CROIX !

Autres logements T3 du programme "Programme neuf Croix (59170)"

Disponibilité Prix Genre Pièces Surface Étage
Voir
Disponible
374 400€ Appt. T3 61.06m2 0-RDC
Voir
Disponible
395 000€ Appt. T3 74.29m2 1er
DO NOT CLICK