290 500€
Appt. au 0-RDC
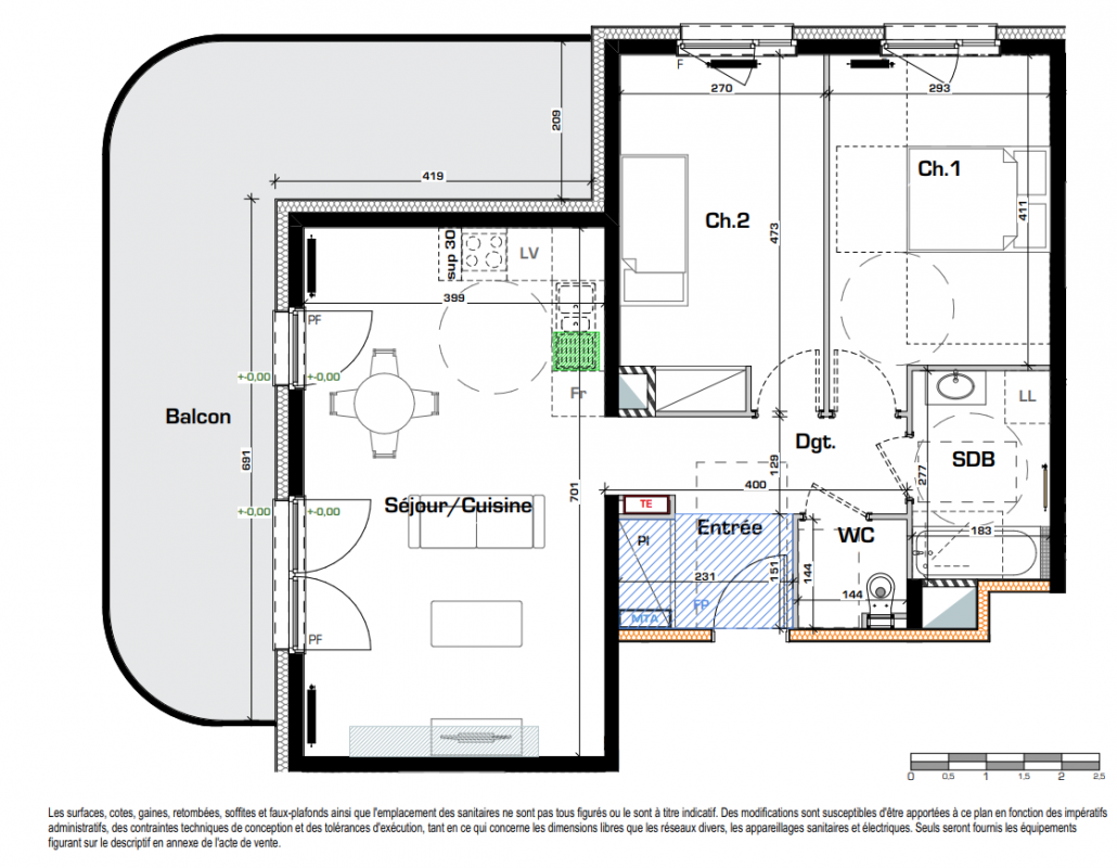
T3
68.32 m²
-
Montigny-lès-Metz (57158)
3ème trimestre 2028
01 81 80 39 10
Présentation du programme "QUARTIER LIZE - LES TERRASSES DE LIZE"
Située au cœur du quartier Lizé, la résidence Les Terrasses de Lizé vous invite à découvrir des appartements neufs, du 2 au 4 pièces, s'élevant sur 3 étages plus des attiques.Plongez dans le confort de nos logements spacieux et lumineux, dotés de grandes baies vitrées qui inondent les intérieurs de lumière naturelle. Profitez de grandes terrasses ou de balcons pour savourer des moments de détente en plein air. Quasiment chaque appartement bénéficie d'une place ou deux places de parking en sous-sol suivant la typologie, garantissant ainsi votre tranquillité d'esprit.Admirez les vues dégagées sur le quartier et les espaces arborés, offrant un cadre de vie paisible et agréable. Nos logements sont construits avec des matériaux de qualité et des finitions soignées, assurant durabilité et élégance. Le chauffage urbain écologique et économique, équipé de radiateurs et sèche serviettes, vous promet un confort optimal tout en respectant l'environnement.Certifiés NF Habitat HQE et RE2020, nos appartements répondent aux normes les plus exigeantes en matière de performance énergétique et de qualité de vie. Avec des orientations avantageuses et variées, certain de nos logements bénéficient de doubles orientations, maximisant ainsi la luminosité et le bien-être au quotidien. .
Autres logements T3 du programme "QUARTIER LIZE - LES TERRASSES DE LIZE"
| Disponibilité | Prix | No | Genre | Pièces | Surface | Étage | Disponibilité | Prix | ||
|---|---|---|---|---|---|---|---|---|---|---|
| Voir | Disponible | 320 500€ | A401 | Appt. | T3 | 68.62m2 | 0-RDC | Disponible | 320 500€ | Voir |
| Voir | Disponible | 274 500€ | A102 | Appt. | T3 | 67.69m2 | 0-RDC | Disponible | 274 500€ | Voir |
| Voir | Disponible | 284 500€ | A106 | Appt. | T3 | 68.32m2 | 0-RDC | Disponible | 284 500€ | Voir |
| Voir | Disponible | 280 500€ | A207 | Appt. | T3 | 71.7m2 | 0-RDC | Disponible | 280 500€ | Voir |
| Voir | Disponible | 284 500€ | A105 | Appt. | T3 | 71.7m2 | 0-RDC | Disponible | 284 500€ | Voir |
| Voir | Disponible | 285 500€ | A302 | Appt. | T3 | 67.41m2 | 0-RDC | Disponible | 285 500€ | Voir |
| Voir | Disponible | 295 500€ | A306 | Appt. | T3 | 68.32m2 | 0-RDC | Disponible | 295 500€ | Voir |
| Voir | Disponible | 324 500€ | A403 | Appt. | T3 | 73.65m2 | 0-RDC | Disponible | 324 500€ | Voir |
| Voir | Disponible | 320 500€ | A404 | Appt. | T3 | 69.08m2 | 0-RDC | Disponible | 320 500€ | Voir |