Prix
360 000€
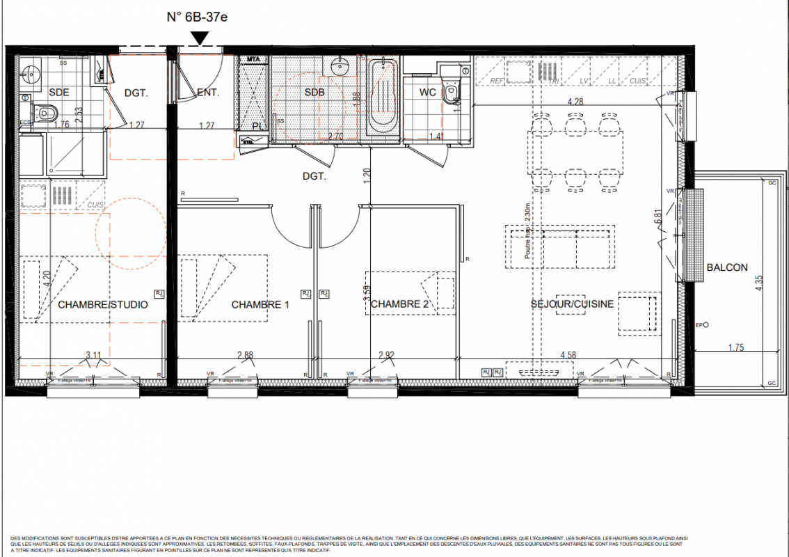
Type
Appt. au 3ème
Pièces
T4
Surface
88 m²
Exposition
Sud-Est
Ville
Montigny-lès-Metz (57158)
Livraison
3ème trimestre 2027
Informations
01 81 80 39 10

Présentation du programme " OXYGENE "

Les travaux sont en cours à Montigny-Lès-Metz !Découvrez les derniers appartements neufs de ce programme immobilier neuf à Montigny-lès-Metz : OXYGENE. Situé au 4 rue Jean Monnet, au coeur de l'écoquartier Lizé, profitez ici d'un environnement verdoyant au pied de 12 000 m² de prairie. Dernier studio de 23 m² exposé sud - salle de bains équipée et placardDerniers T2 de 44 m² avec balcon ou terrasse - salle de bains équipée - WC séparé et placardDernier T3 de 65 à 69 m² avec terrasse et/ou loggia - exposé sud ouest et sud est - place de stationnementDerniers T4 de 80 à 95 m² avec terrasse ou balcon - place de stationnement et vues dégagées !  

Autres logements T4 du programme " OXYGENE "

Disponibilité Prix Genre Pièces Surface Étage
Voir
Disponible
330 000€ Appt. T4 79.15m2 0-RDC
Voir
Disponible
460 000€ Appt. T4 95.6m2 4ème
DO NOT CLICK