Prix
625 297€
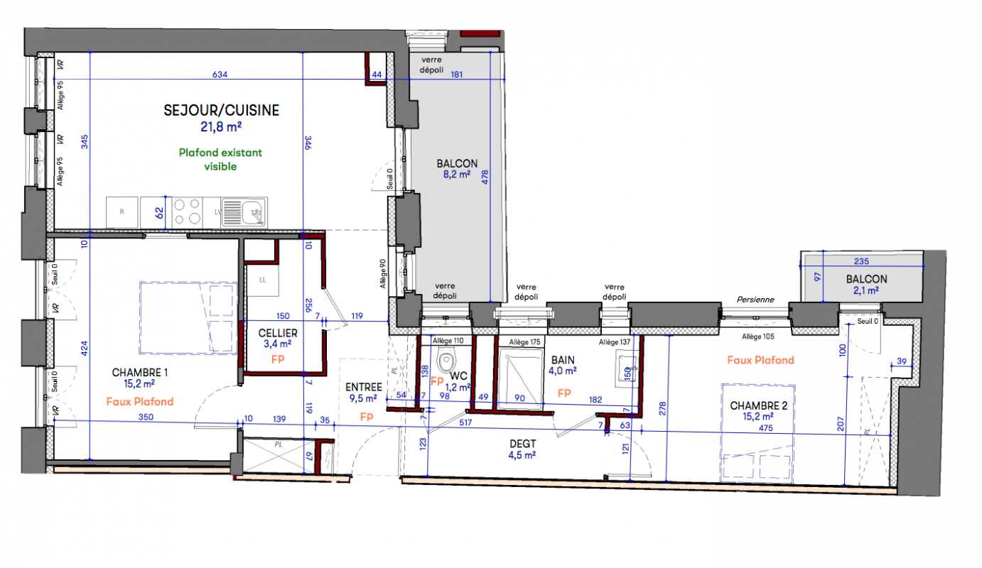
Type
Appt. au 3ème
Pièces
T3
Surface
74.8 m²
Exposition
Nord
Ville
Metz (57000)
Livraison
4ème trimestre 2026
Informations
01 81 80 39 10

Présentation du programme "37 SAINT-THIEBAULT"

À moins d’une heure en voiture ou en train de l’Allemagne et du Luxembourg, à 1h30 de Paris en TGV, Metz bénéficie d’une situation géographique centrale, idéale pour développer son attractivité.
Entièrement réhabilité, Le 37 Saint-Thiébault se situe au trait d’union entre la vieille ville (actuel centre-ville) et le Quartier Impérial. Couvert par un périmètre de Plan de Sauvegarde et de Mise en Valeur (PSMV), il est éligible à la Loi Malraux.
Dans le plus grand respect de l’existant, et avec la volonté de préserver une richesse architecturale exceptionnelle, le projet vise à la mise en valeur des façades, ainsi qu’à la rénovation du patrimoine historique intérieur.
Au travers du dispositif d’une Vente d’Immeuble à Rénover (VIR) Malraux, votre acquisition poursuit un objectif patrimonial, permettant de bénéficier d’une réduction d’impôt sur le revenu égale à 30% des dépenses de travaux. Contactez-nous dès à présent pour une visite de notre logement témoin décoré au : 01 81 80 39 10.

Autres logements T3 du programme "37 SAINT-THIEBAULT"

Disponibilité Prix Genre Pièces Surface Étage
Voir
Disponible
632 782€ Appt. T3 75.8m2 2ème
DO NOT CLICK