Prix
322 000€
Type
Appt. au 0-RDC
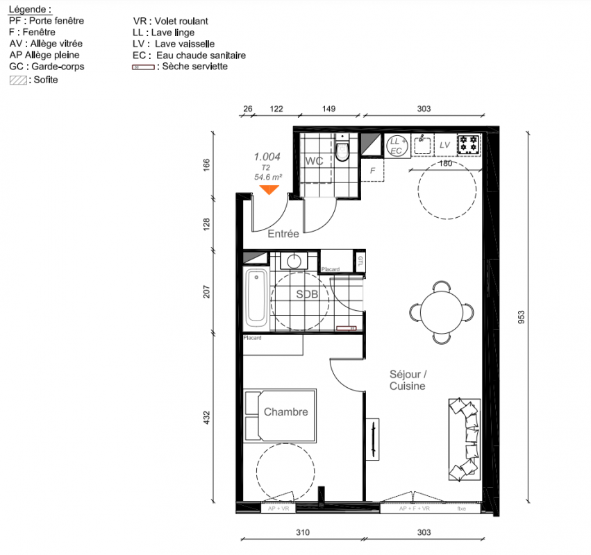
Pièces
T2
Surface
56 m²
Exposition
Sud-Ouest
Ville
Reims (51100)
Livraison
4ème trimestre 2025
Informations
01 81 80 39 10

Présentation du programme "JARDIN PONSARDIN"

Investir en PINEL en plein coeur de Reims !Une adresse Rémoise exceptionnelle proche de la Place Royale et avec une vue privilégiée sur la Cathédrale de Reims. Sur les jardins de l'Hôtel Ponsardin, la résidence prend place de part et d'autres des magnifiques jardins à la Française, répertoriés aux Bâtiments de France. JARDIN PONSARDIN propose des appartements de standing du studio au 4 pièces avec espaces extérieurs (balcon ou terrasse) et stationnement en sous-sol. Prenez contact avec votre conseiller pour plus d'informations. Pour toutes informations complémentaires, prenez contact avec nous !

Autres logements T2 du programme "JARDIN PONSARDIN"

Pas de logements disponibles
DO NOT CLICK