Prix
399 000€
Type
Appt. au 3ème
Pièces
T4
Surface
96.88 m²
Exposition
Sud-Ouest
Ville
Saint-Louis (68128)
Livraison
3ème trimestre 2024
Informations
01 81 80 39 10

Présentation du programme "Programme neuf Saint-Louis (68128)"

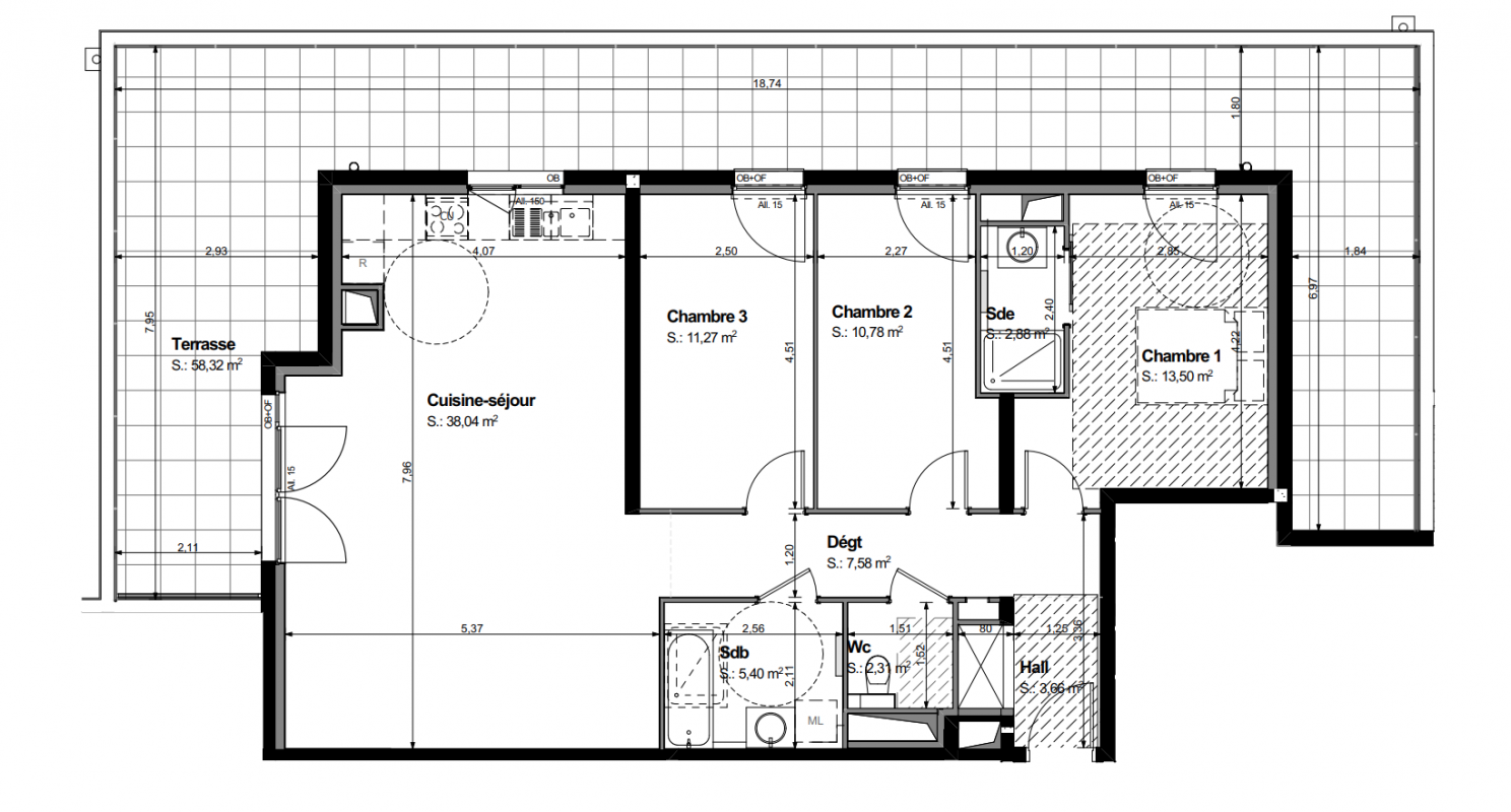
Les 30 jours Flash ! Faites la meilleure affaire de fin d’année à SAINT-LOUIS et emménagez immédiatement ! Jusqu’à 8 000 euros de remise et frais de notaire offerts. Devenez propriétaire de votre appartement neuf 2 ou 4 pièces en LIVRAISON IMMEDIATE ! Contactez vite un de nos conseillers pour visiter notre appartement décoré et vous projeter dans votre futur chez vous !Magnifique appartement 4 pièces de 95m², idéalement situé dans une résidence intimiste au dernier étage ! Toutes les pièces donnent accès à une terrasse de 58m2 avec vue dégagée. Le logement se compose d’un beau séjour et de 3 chambres, d’une salle de bains et une salle de douche . Un garage en sous-sol vient compléter le bien. Profitez d’un confort toute l’année grâce aux dernières normes énergétiques. Spacieux appartement 2 pièces de 41m², situé au 1er étage. Le logement se compose d’un grand espace séjour / cuisine de 20m² s’ouvrant sur un balcon de 10m², d’une belle chambre de 12m², une salle de bain moderne et toilettes séparées. Contactez vite un de nos conseillers pour découvrir tous nos appartements neufs à Saint-Louis et pour profiter de cette dernière opportunité !

Autres logements T4 du programme "Programme neuf Saint-Louis (68128)"

Pas de logements disponibles
DO NOT CLICK