Prix
212 588€  (TVA 20%)
186 900€  (TVA 5.5%)
Type
Appt. au 2ème
Pièces
T2
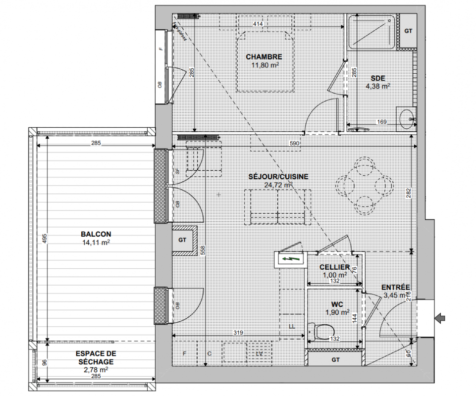
Surface
47.13 m²
Exposition
-
Ville
Strasbourg (67000)
Livraison
4ème trimestre 2026
Informations
01 81 80 39 10

Présentation du programme "LE WOOD"

NOUVEAU à Strasbourg ! VOS FRAIS DE NOTAIRE OFFERTS + JUSQU'A 15 000 EUROS DE REMISE * ! Découvrez cette nouvelle résidence située dans le quartier du Neuhof en plein renouveau qui est engagé dans une dynamique de renouvellement urbain depuis les années 2000. Le projet sera réalisé selon une architecture soignée avec une composition bois en façade. Il se constitue d'appartements lumineux et traversants qui sont privilégiés par des espaces de rangements ainsi que des prolongements extérieurs. Ces atouts amélioreront votre quotidien de façon permanente. Des espaces communs tels que des espaces verts et des buanderies seront présents. Des places de parking en sous-sol ainsi que des locaux vélos au rez-de-chaussée sauront garantir une sérénité pour vos stationnements. La résidence est proche de toutes les commodités nécessaires. Pour des déplacements en transports en commun, l'arrêt de tram Saint-Christophe (Ligne C) est à proximité immédiate de la résidence. Pour des activités culturelles et sportives, vous trouverez des établissements pour vous divertir comme la piscine de la Kibitzenau, le stade de la Meinau ou le gymnase Solignac. Afin d'en savoir plus, contactez-nous dès maintenant ! Votre conseiller commercial saura vous conforter et vous guider dans votre choix. Prix hors parking avec remise incluse. * Offres limitées aux 10 premiers réservataires. Voir conditions.

Autres logements T2 du programme "LE WOOD"

Disponibilité Prix Genre Pièces Surface Étage
Voir
Disponible
213 725€ Appt. T2 49.68m2 2ème