296 758€ (TVA 20%)
260 900€ (TVA 5.5%)
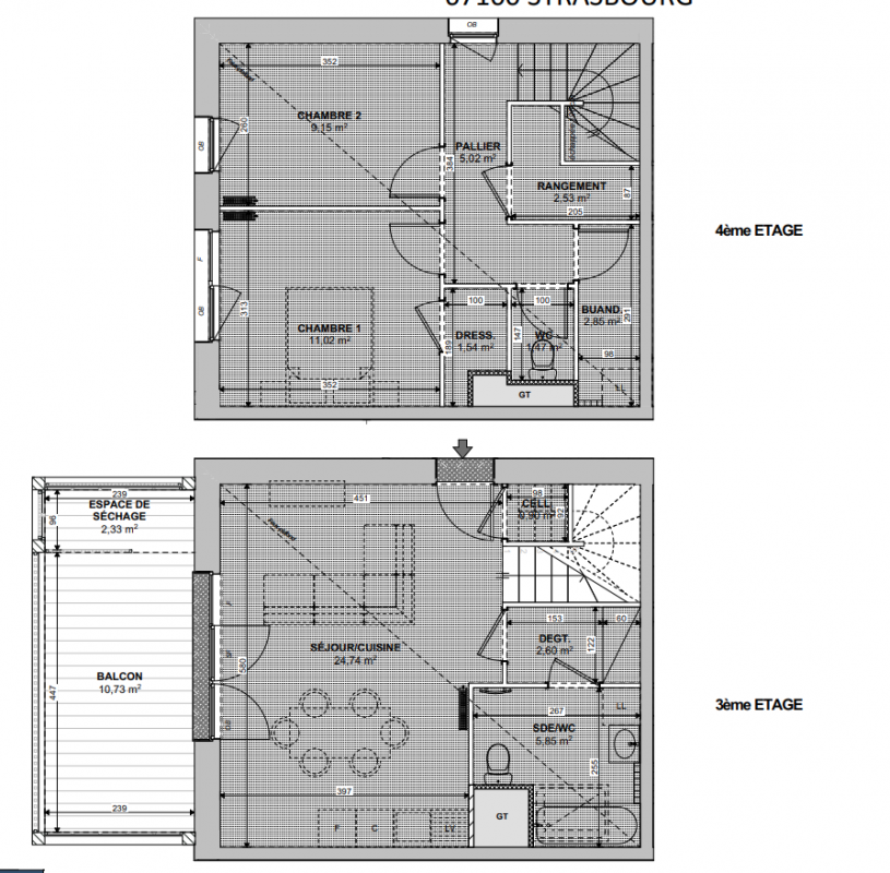
Appt. au 3ème
-
70.17 m²
-
Strasbourg (67000)
4ème trimestre 2026
01 81 80 39 10
Présentation du programme "LE WOOD"
VOS FRAIS DE NOTAIRE OFFERTS + JUSQU'A 15 000 EUROS DE REMISE * JUSQU'AU 31 JUILLET ! Votre 3 pièces à partir de 796 euros par mois ** Rendez-vous en espace de vente Place Saint-Christophe à Strasbourg ! Découvrez cette nouvelle résidence située dans le quartier du Neuhof en plein renouveau qui est engagé dans une dynamique de renouvellement urbain depuis plusieurs années. Le projet comportera 3 petits bâtiments et agrémenté de deux commerces. Il se constitue d'appartements lumineux, traversants et bénéficiant de grands et larges balcons. Des panneaux solaires alimenteront les besoins en électricité de la copropriété ainsi que de la pompe à chaleur. Ces atouts amélioreront votre quotidien de façon permanente et feront en baisser vos charges. Des garages en sous-sol ainsi que des locaux vélos au rez-de-chaussée sauront garantir une sérénité pour vos stationnements. La résidence est proche de toutes les commodités nécessaires. Pour des déplacements en transports en commun, l'arrêt de tram Saint-Christophe (Ligne C) est à proximité immédiate de la résidence. Pour des activités culturelles et sportives, vous trouverez des établissements pour vous divertir comme la piscine de la Kibitzenau et le stade de la Meinau. Afin d'en savoir plus, contactez-nous dès maintenant au 0379331010 ! Votre conseiller commercial saura vous conforter et vous guider dans votre choix. PTZ zone A, RE 2020. Prix hors parking avec remise incluse. * Offres limitées aux 10 premiers réservataires. ** Avec 5 000 euros d'apport. Voir conditions.
Autres logements - du programme "LE WOOD"
| Disponibilité | Prix | No | Genre | Pièces | Surface | Étage | Disponibilité | Prix | ||
|---|---|---|---|---|---|---|---|---|---|---|
| Voir | Disponible | 253 649€ | A14A | Appt. | - | 66.44m2 Le bon plan | 1er | Disponible | 253 649€ | Voir |
| Voir | Disponible | 313 592€ | A16 | Appt. | - | 73.09m2 | 1er | Disponible | 313 592€ | Voir |
| Voir | Disponible | 271 848€ | A24A | Appt. | - | 66.32m2 | 2ème | Disponible | 271 848€ | Voir |
| Voir | Disponible | 278 673€ | A26 | Appt. | - | 62.79m2 | 2ème | Disponible | 278 673€ | Voir |
| Voir | Disponible | 204 171€ | A27 | Appt. | - | 43.08m2 | 2ème | Disponible | 204 171€ | Voir |
| Voir | Disponible | 265 024€ | A31 | Appt. | - | 61.09m2 | 3ème | Disponible | 265 024€ | Voir |
| Voir | Disponible | 202 464€ | A33 | Appt. | - | 49.5m2 | 3ème | Disponible | 202 464€ | Voir |
| Voir | Disponible | 288 910€ | A41 | Appt. | - | 66.79m2 | 4ème | Disponible | 288 910€ | Voir |
| Voir | Disponible | 294 825€ | A51 | Appt. | - | 66.56m2 | 5ème | Disponible | 294 825€ | Voir |
| Voir | Disponible | 311 545€ | B11 | Appt. | - | 79.2m2 | 1er | Disponible | 311 545€ | Voir |
| Voir | Disponible | 389 005€ | B23 | Appt. | - | 98.13m2 | 2ème | Disponible | 389 005€ | Voir |
| Voir | Disponible | 301 649€ | B31 | Appt. | - | 73.24m2 | 3ème | Disponible | 301 649€ | Voir |
| Voir | Disponible | 334 863€ | B33 | Appt. | - | 80.51m2 | 3ème | Disponible | 334 863€ | Voir |
| Voir | Disponible | 286 521€ | B34 | Appt. | - | 65.45m2 | 3ème | Disponible | 286 521€ | Voir |
| Voir | Disponible | 397 536€ | C11 | Appt. | - | 99.45m2 | 1er | Disponible | 397 536€ | Voir |
| Voir | Disponible | 277 081€ | C12 | Appt. | - | 59.47m2 | 1er | Disponible | 277 081€ | Voir |
| Voir | Disponible | 281 517€ | C22 | Appt. | - | 59.47m2 | 2ème | Disponible | 281 517€ | Voir |
| Voir | Disponible | 213 725€ | C23 | Appt. | - | 49.74m2 | 2ème | Disponible | 213 725€ | Voir |
| Voir | Disponible | 291 071€ | C31 | Appt. | - | 63.19m2 | 3ème | Disponible | 291 071€ | Voir |
| Voir | Disponible | 294 142€ | C41 | Appt. | - | 63.01m2 | 4ème | Disponible | 294 142€ | Voir |
| Voir | Disponible | 304 720€ | C43 | Appt. | - | 75m2 | 4ème | Disponible | 304 720€ | Voir |
| Voir | Disponible | 297 782€ | C51 | Appt. | - | 63.01m2 | 5ème | Disponible | 297 782€ | Voir |
| Voir | Disponible | 321 896€ | C52 | Appt. | - | 74.23m2 | 5ème | Disponible | 321 896€ | Voir |
| Voir | Disponible | 325 422€ | A44 | Appt. | - | 84.83m2 | 4ème | Disponible | 325 422€ | Voir |
| Voir | Disponible | 212 588€ | B22 | Appt. | - | 47.66m2 | 2ème | Disponible | 212 588€ | Voir |