35 100€
231 800€
- €
231 800€
- €
Type
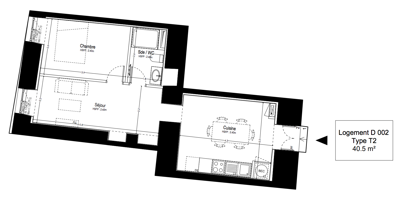
Appt. au 0-RDC
Appt. au 0-RDC
Pièces
Studio
Studio
Surface
40.5 m²
40.5 m²
Exposition
-
-
Ville
Blois (41000)
Blois (41000)
Livraison
4ème trimestre 2027
4ème trimestre 2027
Informations
01 81 80 39 10
01 81 80 39 10
Présentation du programme "HOTEL DIEU"
À Blois, l’Hôtel-Dieu du XIIIe siècle, a su au fil des années garder son élégance architecturale. Afin de sauvegarder ce joyau du patrimoine français, Histoire & Patrimoine réhabilite ce magnifique site et va y aménager 97 logements.
Éligible aux dispositifs fiscaux Monument Historique et Malraux, investir à l’Hôtel-Dieu vous permettra de faire fructifier votre patrimoine tout en accomplissant une mission d’intérêt général.
Autres logements Studio du programme "HOTEL DIEU"
| Disponibilité | Prix | No | Genre | Pièces | Surface | Étage | Disponibilité | Prix | ||
|---|---|---|---|---|---|---|---|---|---|---|
| Voir | Optionné | 328 400€ | A2.215 | Appt. | Studio | 38.8m2 | 2ème | Optionné Mais pas encore vendu 😉 | 328 400€ Prix foncier 29 400€ Prix travaux 283 000€ | Voir |
| Voir | Disponible | 324 000€ | A4.201 | Appt. | Studio | 36.6m2 | 2ème | Disponible | 324 000€ Prix foncier 27 700€ Prix travaux 280 300€ | Voir |
| Voir | Disponible | 295 800€ | A1.201a | Appt. | Studio | 31.8m2 | 2ème | Disponible | 295 800€ Prix foncier 25 200€ Prix travaux 254 600€ | Voir |
| Voir | Optionné | 266 000€ | A2.111b | Appt. | Studio | 29.2m2 | 1er | Optionné Mais pas encore vendu 😉 | 266 000€ Prix foncier 23 500€ Prix travaux 226 500€ | Voir |
| Voir | Optionné | 303 600€ | A3.203 | Appt. | Studio | 34m2 | 2ème | Optionné Mais pas encore vendu 😉 | 303 600€ Prix foncier 27 200€ Prix travaux 260 400€ | Voir |