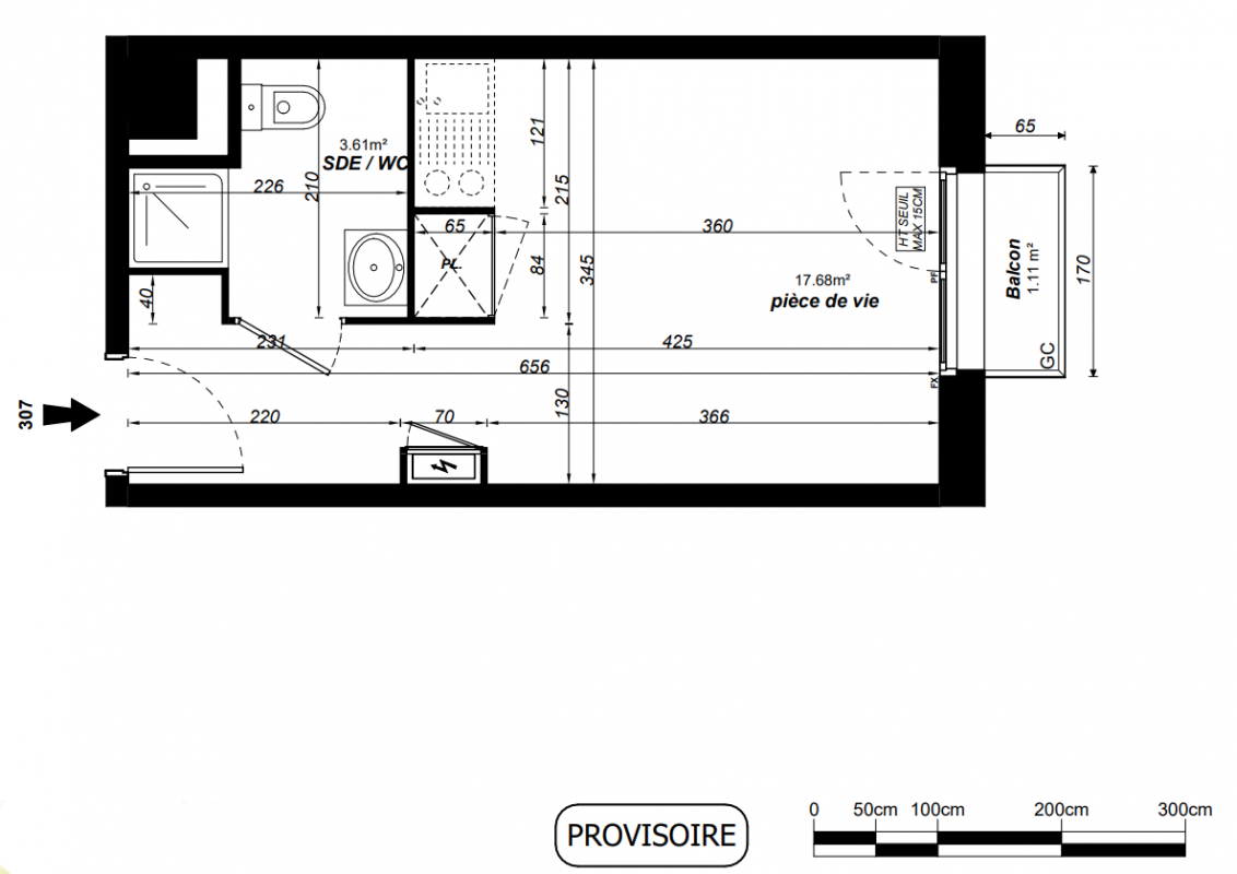
Prix
129 400€
Type
Appt. au 3ème
Pièces
Studio
Surface
21.29 m²
Exposition
Est
Ville
Joué-lès-Tours (37300)
Livraison
3ème trimestre 2027
Informations
01 81 80 39 10

Présentation du programme "Programme neuf Joué-lès-Tours (37300)"

Investissez dans une résidence étudiante à Joué-lès-Tours et profitez d’un potentiel de rendement locatif allant jusqu’à 5,7% ! Découvrez la résidence étudiante Programme neuf Joué-lès-Tours (37300), située à Joué-lès-Tours, aux portes de Tours, dans un environnement calme et verdoyant. Offrant une qualité de vie optimale, cette résidence allie confort modern et praticité, répondant parfaitement aux besoins des étudiants et jeunes actifs. Idéalement localisée, notre résidence se trouve à seulement 10 min* à pied de l’université de Tours regroupant faculté des Sciences et Techniques, faculté de Pharmacie, et IUT de Tours Grandmont. À proximité immédiate, de nombreux commerces et services essentiels sont accessibles : supermarché, boulangerie, pharmacie, ainsi que des espaces verts comme le parc de Grandmont ou le parc du Lac de la Bergeonnerie, parfaits pour les moments de détente et les activités physiques. Côté transports, la résidence est excellement desservie. L’arrêt de bus « Boulevard Chinon » des lignes 5,16 et 69 situé à moins de 250 mètres* permet de rejoindre l’ensemble de la ville. De plus, la future ligne de tramway prévue en 2028, facilitera l’accès aux différents points stratégique de Tours.Programme neuf Joué-lès-Tours (37300) propose 135 logements fonctionnels et meublés, allant du studio au T2, composé d’une cuisine et d’une salle d’eau privative. La résidence intègre également des espaces communs conviviaux comme une salle de coworking et une laverie afin d’assurer le confort de tous. Un local à vélo ainsi que des places de parking en sous-sol sont également disponibles. Contactez-vite un de nos conseillers pour découvrir tous nos logements neufs à Joué-lès-Tours.

Autres logements Studio du programme "Programme neuf Joué-lès-Tours (37300)"

Disponibilité Prix Genre Pièces Surface Étage
Voir
Disponible
125 200€ Appt. Studio 21.53m2 1er
Voir
Disponible
125 200€ Appt. Studio 21.53m2 1er
Voir
Disponible
128 500€ Appt. Studio 21.29m2 1er
Voir
Disponible
125 200€ Appt. Studio 21.53m2 1er
Voir
Disponible
125 800€ Appt. Studio 21.53m2 1er
Voir
Disponible
134 000€ Appt. Studio 20.71m2 0-RDC
Voir
Disponible
133 100€ Appt. Studio 21.12m2 0-RDC
Voir
Disponible
133 100€ Appt. Studio 21.12m2 0-RDC
Voir
Disponible
141 900€ Appt. Studio 22.56m2 0-RDC
Voir
Disponible
136 100€ Appt. Studio 22.94m2 2ème
Voir
Disponible
128 000€ Appt. Studio 21.53m2 2ème
Voir
Disponible
128 100€ Appt. Studio 21.53m2 2ème
Voir
Disponible
126 700€ Appt. Studio 21.29m2 2ème
Voir
Disponible
128 100€ Appt. Studio 21.53m2 2ème
Voir
Disponible
150 200€ Appt. Studio 26.53m2 2ème
Voir
Disponible
122 100€ Appt. Studio 17.73m2 2ème
Voir
Disponible
120 200€ Appt. Studio 17.49m2 2ème
Voir
Disponible
121 800€ Appt. Studio 17.73m2 2ème
Voir
Disponible
122 100€ Appt. Studio 17.73m2 2ème
Voir
Disponible
122 000€ Appt. Studio 17.49m2 2ème
Voir
Disponible
125 600€ Appt. Studio 20.66m2 3ème
Voir
Disponible
117 100€ Appt. Studio 17.43m2 3ème
Voir
Optionné
167 900€ Appt. Studio 33.33m2
Le bon plan
3ème
Voir
Disponible
130 000€ Appt. Studio 21.53m2 3ème
Voir
Disponible
129 400€ Appt. Studio 21.29m2 3ème
Voir
Disponible
136 000€ Appt. Studio 24.25m2 3ème
Voir
Disponible
152 800€ Appt. Studio 29.77m2 3ème
Voir
Disponible
122 600€ Appt. Studio 17.49m2 3ème
Voir
Disponible
122 500€ Appt. Studio 17.49m2 3ème
Voir
Disponible
124 300€ Appt. Studio 17.49m2 3ème
Voir
Disponible
122 600€ Appt. Studio 17.49m2 3ème
Voir
Disponible
111 600€ Appt. Studio 17.73m2 3ème
Voir
Disponible
171 700€ Appt. Studio 33.33m2 4ème
Voir
Disponible
121 700€ Appt. Studio 17.73m2 4ème
Voir
Disponible
126 700€ Appt. Studio 18.49m2 4ème
Voir
Disponible
165 600€ Appt. Studio 26.14m2 4ème
Voir
Disponible
124 700€ Appt. Studio 17.49m2 4ème
Voir
Disponible
124 700€ Appt. Studio 17.49m2 4ème
Voir
Disponible
112 200€ Appt. Studio 17.49m2 4ème
DO NOT CLICK