Prix
1 217 156€
1 217 156€
Type
Maison au 0-RDC
Maison au 0-RDC
Pièces
T7
T7
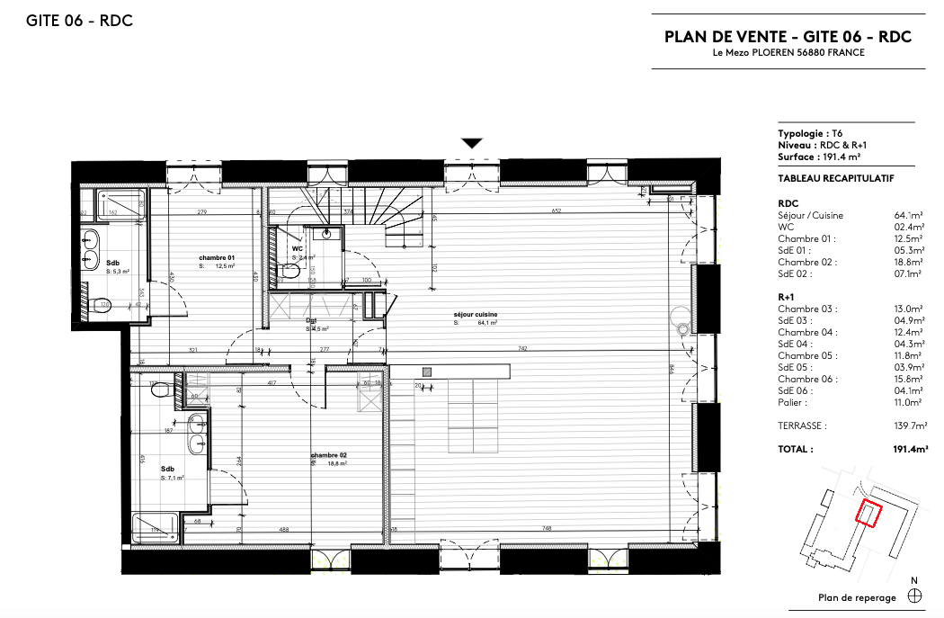
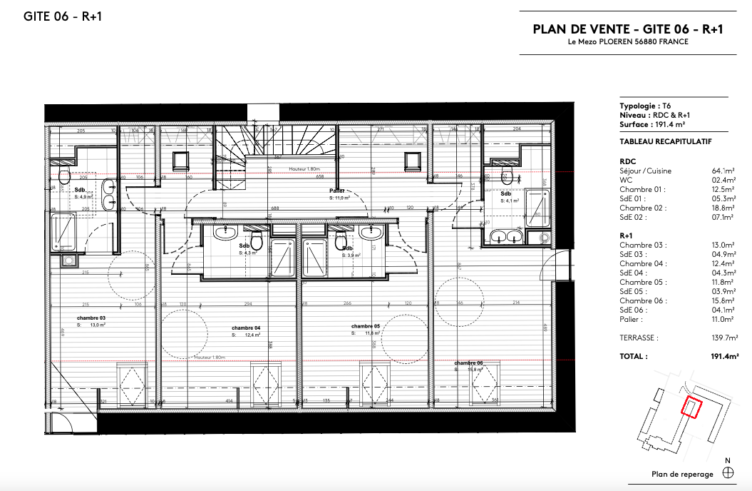
Surface
191.4 m²
191.4 m²
Exposition
Sud-Est
Sud-Est
Ville
Ploeren (56880)
Ploeren (56880)
Livraison
2ème trimestre 2023
2ème trimestre 2023
Informations
01 81 80 39 10
01 81 80 39 10
Présentation du programme "Domaine LE MEZO - Maisons entières"
Devenez propriétaire investisseur de biens immobiliers d'exception au sein de Domaine Le Mezo, à proximité du golf du Morbihan sur un site remarquable et exceptionnel de 25 hectares ! Cet ensemble immobilier touristique géré avec services para-hôteliers est composé de 9 hébergements meublés exclusifs : 6 farm houses et 3 lofts ! Vous pouvez participer de deux manières : par parts immobilières indivises à hauteur d'1/8ème ou l'hébergement en intégralité ! Grâce à VIANOVA, vous bénéficiez d'une remise de -10% jusqu'au 31 décembre 2022 et d'un rendement de 6,2% / an ! Bail commercial de 9 années minimum jusqu'a 12 ans, renouvelable si souhaité, possibilité d'occupation quelques jours par an sur demande.


