Ce lot n’est plus disponible chez VIANOVA ou est vendu.
Vous pouvez revenir dans 24h pour vérifier le stock à jour ou contacter un conseiller Vianova pour vérifier le stock en direct.
Vous pouvez également continuer votre recherche sur notre site « ici ».
250 000€
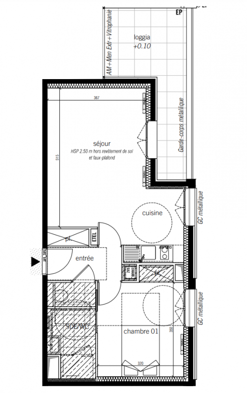
Appt. au 1er
T2
46.9 m²
-
Saint-Malo (35400)
1er trimestre 2026
01 81 80 39 10
Présentation du programme "MALORETTE"
[ APPARTEMENTS NEUFS À SAINT-MALO ] Découvrez MALORETTE, une résidence neuve nichée sur le site historique de l'ancienne caserne Lorette. Composée d'appartements modernes, du 2 au 4 pièces, elle se situe à l'entrée sud de la ville, entre Saint-Servan et le splendide domaine de la Briantais. Cet endroit, riche en histoire, accueille ces nouveaux logements qui marient patrimoine et modernité pour un cadre de vie unique.
Les appartements en rez-de-chaussée disposent de grands jardins privatifs, tandis que ceux des étages supérieurs bénéficient de vastes terrasses. Matériaux nobles et finitions soignées garantissent un confort optimal. La conception de la résidence met l'accent sur le bien-être quotidien, avec une forte prise en compte des enjeux environnementaux.
MALORETTE offre un cadre de vie exceptionnel au sein de l'écoquartier, proche des commerces, des écoles, du marché et de la gare, alliant praticité et sérénité.
SPÉCIAL INVESTISSEURS – Profitez du nouveau Dispositif JEANBRUN : optimisez votre fiscalité et accélérez votre patrimoine.
Contactez nos conseillers Lamotte pour en savoir plus ou rendez-vous sur notre site Vianova.fr.