Prix
177 300€
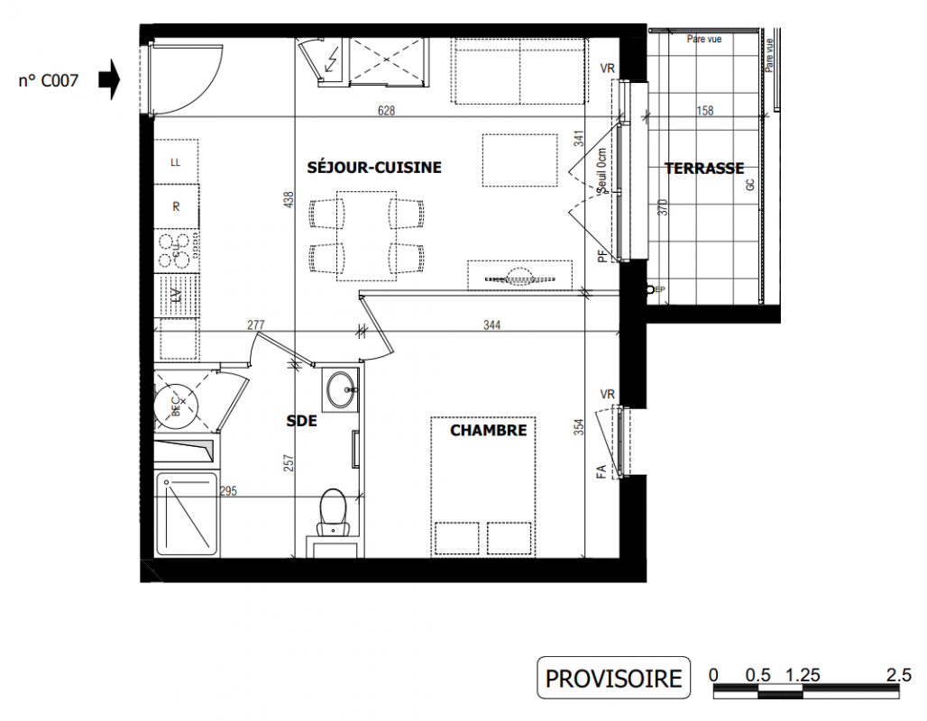
Type
Appt. au 0-RDC
Pièces
T2
Surface
42.39 m²
Exposition
Est
Ville
Gévezé (35850)
Livraison
1er trimestre 2027
Informations
01 81 80 39 10

Présentation du programme "Programme neuf Gévezé (35850)"

Située dans le département d'Ille-et-Vilaine, Gévezé offre un cadre de vie paisible tout en bénéficiant des avantages de la proximité urbaine. Composée d’appartements du 2 au 4 pièces, notre résidence s’inscrit dans un environnement boisé. Chaque logement est prolongé d’espaces extérieurs permettant de prolonger l’espace de vie, créant une atmosphère chaleureuse et accueillante. Pour assurer confort et sécurité, un local à vélos et un parking en sous-sol sont disponibles.De plus, à proximité, une aire de jeux ainsi qu'un espace boisé classé offrent des espaces de détente et de loisirs pour tous.À seulement 15 kilomètres* de Rennes, Gévezé bénéficie d'une situation géographique stratégique. La ville est desservie par de nombreuses routes départementales, facilitant l'accès rapide aux axes principaux et aux communes environnantes. Côté transport en commun, l’arrêt de bus « Coualeuc » situé au pied de la résidence ainsi que les lignes régulières permettent de rejoindre facilement le centre de Rennes et sa gare, accessible en seulement 20 min* en voiture.La commune se distingue par son environnement naturel préservé. Le parc de la Plaine Launay Geffroy ou encore les sentiers de randonnée offrent des opportunités idéales pour les promenades en famille et les activités de plein air. La vie associative est très présente au sein de la ville et anime le quotidien des habitants, offrant un cadre dynamique et des rendez-vous réguliers à ne pas manquer !Niveau commerces, une zone commerciale avec tous les essentiels du quotidien, dont un supermarché, une pharmacie et une boulangerie, se trouve à seulement 3 min* en voiture.Gévezé, c'est la promesse d'une qualité de vie exceptionnelle dans un environnement serein et verdoyant. Venez sans plus attendre découvrir notre nouvelle résidence.

Autres logements T2 du programme "Programme neuf Gévezé (35850)"

Disponibilité Prix Genre Pièces Surface Étage
Voir
Disponible
181 400€ Appt. T2 42.58m2 1er
Voir
Disponible
184 500€ Appt. T2 42.58m2 2ème
Voir
Disponible
184 500€ Appt. T2 42.58m2 2ème