Ce lot n’est plus disponible chez VIANOVA ou est vendu.

Vous pouvez revenir dans 24h pour vérifier le stock à jour ou contacter un conseiller Vianova pour vérifier le stock en direct.
Vous pouvez également continuer votre recherche sur notre site « ici ».

Prix
424 500€
Type
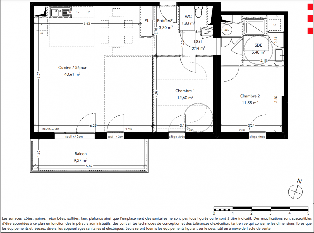
Appt. au 0-RDC
Pièces
T3
Surface
80.27 m²
Exposition
Sud
Ville
Paimpol (22500)
Livraison
4ème trimestre 2026
Informations
01 81 80 39 10

Présentation du programme "LES JARDINS DE KERROC'H"

 Devenez propriétaire d'un appartement neuf à Paimpol !Située à proximité immédiate de la mer, la résidence Les Jardins de Kerroc’h, propose des appartements de standing, du 2 au 4 pièces avec espaces extérieurs privatifs : terrasse, balcon, loggia ou jardin jusqu’à 200 m² en rez-de-chaussée.Construite selon les normes RE 2020 et certifiée NF Habitat, elle garantit une performance énergétique optimale et un confort moderne avec des volets roulants électriques, des salles de bains équipées et un revêtement de qualité dans chaque pièce.Avec son architecture soignée et ses parkings sécurisés, la résidence offre un cadre de vie paisible et privilégié, entre modernité et douceur maritime. 

Autres logements T3 du programme "LES JARDINS DE KERROC'H"

Pas de logements disponibles