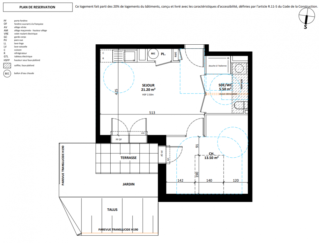
Prix
149 000€
149 000€
Type
Appt. au 0-RDC
Appt. au 0-RDC
Pièces
T2
T2
Surface
40.2 m²
40.2 m²
Exposition
-
-
Ville
Hillion (22120)
Hillion (22120)
Livraison
2ème trimestre 2028
2ème trimestre 2028
Informations
01 81 80 39 10
01 81 80 39 10
Présentation du programme "CLOS RONAN"