Prix
170 000€
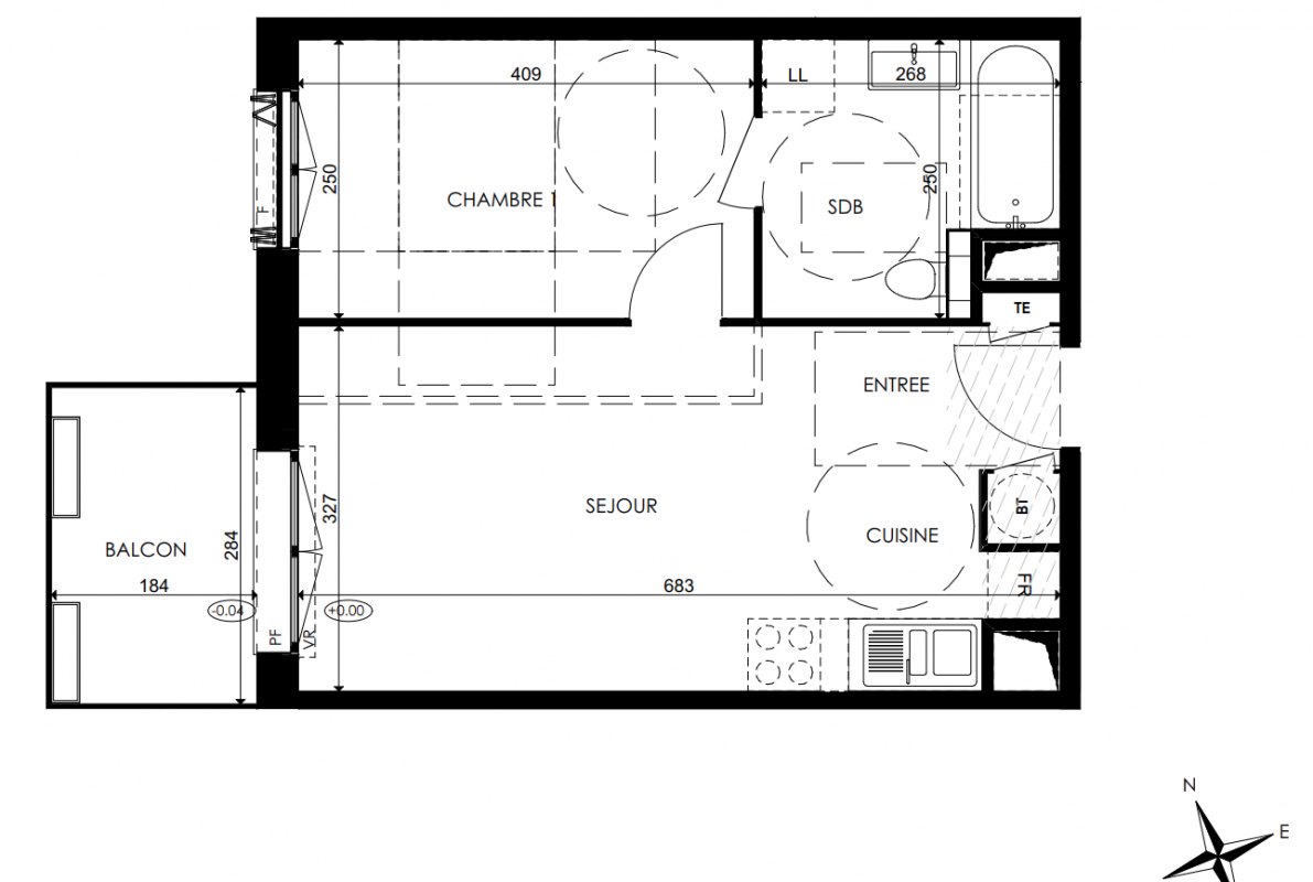
Type
Appt. au 1er
Pièces
T2
Surface
38.25 m²
Exposition
Ouest
Ville
Plombières-lès-Dijon (21370)
Livraison
3ème trimestre 2026
Informations
01 81 80 39 10

Présentation du programme "Les Jardins d’Oscara"

Profitez des offres en cours, sur cette nouvelle signature Kaufman & Broad
Ce nouveau projet immobilier réunit des atouts pour investir dans l’agglomération dijonnaise. À 1 km* de l’A38 et à 1,5 km* de la Lino (liaison nord de Dijon), il bénéficie d’une localisation pratique permettant de rayonner facilement vers les principaux bassins d’emploi de l’agglomération, tout en profitant d’une adresse en plein cœur de ville. Le bus n° 12 en pied de résidence dessert la gare TGV en 15 min et Dijon centre en 20 min. Proche du lac Kir et de ses plages, Plombières-lès-Dijon est une destination recherchée avec peu d’offre dans le neuf. Cette rareté, associée au standing du programme, assure à votre bien une forte demande locative et de belles perspectives de valorisation patrimoniale. Il est également éligible au dispositif Pinel (zone B1) pour une fiscalité optimisée. * Source : Google Maps

Autres logements T2 du programme "Les Jardins d’Oscara"

Disponibilité Prix Genre Pièces Surface Étage
Voir
Disponible
173 000€ Appt. T2 45m2 1er
Voir
Disponible
150 000€ Appt. T2 37.5m2 1er
Voir
Disponible
190 000€ Appt. T2 45.25m2 2ème
DO NOT CLICK