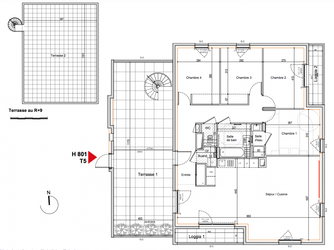
Prix
749 000€
Type
Appt. au 8ème
Pièces
T5
Surface
110.8 m²
Exposition
Sud
Ville
Lyon 7ème (69007)
Livraison
3ème trimestre 2025
Informations
01 81 80 39 10

Présentation du programme "WELLCOME HARMONY"

Au cœur du territoire de GERLAND, notre nouvelle résidence Harmony se décline du studio au 5 pièces avec des appartements qui s’ouvrent pour la plupart sur de généreux balcons ou des terrasses. Ces espaces extérieurs privatifs offrent de belles vues sur une large promenade arborée et calme. Commerces, écoles, restaurants… Une manière unique pour vous de vivre en symbiose avec votre habitat et votre ville.
Contactez-nous dès aujourd’hui pour être informé !

Autres logements T5 du programme "WELLCOME HARMONY"

Disponibilité Prix Genre Pièces Surface Étage
Voir
Disponible
445 000€ Appt. T5 80.9m2 1er
DO NOT CLICK